*You MUST register for an inspection and we ask that you also confirm your attendance. AN AGENT WILL NOT BE PRESENT IF YOU DO NOT REGISTER and CONFIRM. Your consideration and co-operation is...
*You MUST register for an inspection and we ask that you also confirm your attendance. AN AGENT WILL NOT BE PRESENT IF YOU DO NOT REGISTER and CONFIRM. Your consideration and co-operation is appreciated.
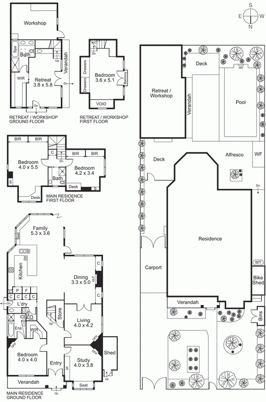
This magnificent 4 bedroom, plus study entertainer with gracious period style and a focus on indoor/outdoor family living showcases a sublime blend of past and present. The original features have been beautifully updated whilst retaining stunning decorative details to include a generous master with luxury en suite and walk in robe, a large study or fifth bedroom option, an ambient family/TV room and vast adjoining dining. Upstairs two oversized, light filled bedrooms with built in robes, and a stone-finished bathroom creates the ideal kids domain. Just when you think this meticulous residence can't get any better it opens up to a spectacular, sunlit open plan living zone overlooking a beautiful, resort style pool. At the heart of this expansive family area is a superbly appointed epicurean kitchen with stainless steel euro appliances, huge caesarstone bench tops and exceptional storage solutions designed for grand scale entertaining. Beyond multiple sunny poolside decks, lush gardens and alfresco dining sits a fabulous two storey studio (A/C) providing the ultimate parent's retreat or home office with a separate entrance, tree top bedroom/alternate master suite & ground floor kitchenette, spa bathroom and walk in robe. Other luxury extras include powder room, large laundry, excellent storage throughout, ducted heating downstairs, reverse cycle heating and cooling upstairs, water tank, separate work shed and auto gated carport for one car plus driveway parking for more. Brilliantly located in a family friendly cul de sac only a short stroll to vibrant Bay Street shopping, dining and cinema, exclusive schools and North Brighton station and a leisurely bike ride to iconic Brighton Beach this stylish sanctuary is built for modern family life. Enjoy all this beautiful property has to offer! It's definitely a must-see!
* Open fireplaces and gas heaters are ornamental and non-operational.
** Gardening and pool maintenance is included.
*** Pool is not heated.
