EXPECTED COMPLETION - EARLY NOV 2025 CONTACT MELISSA HETHERINGTON - 0432 935 111 Pre-purchase now and get ahead of the field where Caulfield’s retail, rail and racecourse hub meets Melbourne’s...
EXPECTED COMPLETION - EARLY NOV 2025
CONTACT MELISSA HETHERINGTON - 0432 935 111
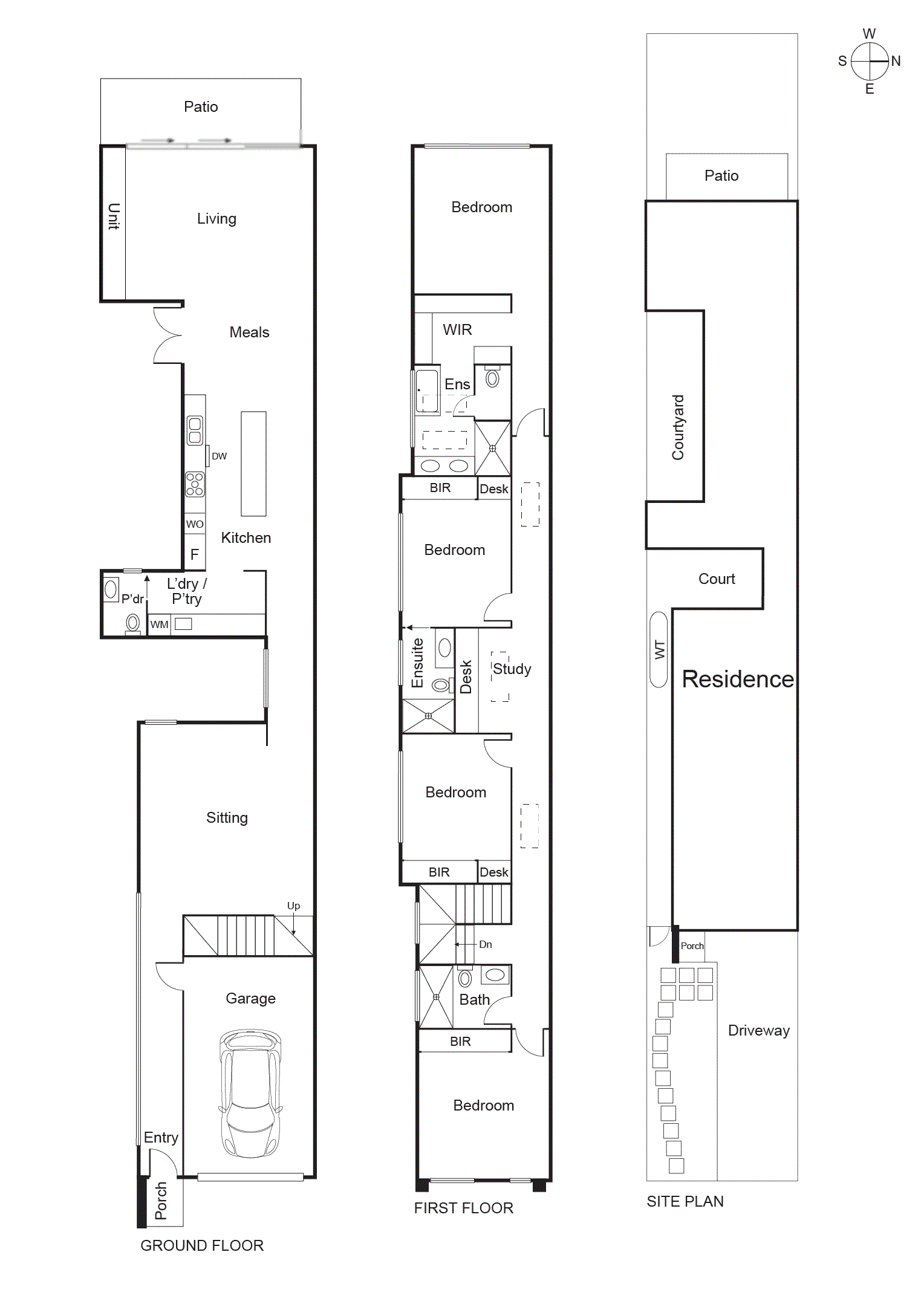
Pre-purchase now and get ahead of the field where Caulfield’s retail, rail and racecourse hub meets Melbourne’s newest education precinct. Under construction now, this dynamic four bedroom plus study area, 3.5 bathroom home is set to lead the way at one of Melbourne’s most fast-paced addresses.
Designed for lush green outlooks at every turn with formal and family living wrapping a central courtyard, and a cutting-edge kitchen stretched out along a deep side garden, this dynamic design steps out with an al fresco entertaining terrace flowing to a large backyard. Impressively accommodating with a dedicated first-floor bedroom zone, this ground-breaking plan will dedicate almost a third of the upper-level to an immensely private master-domain ...and will centre a fully-fitted study area beneath a brilliant skylight.
Specified to an uncompromising standard with a full complement of Bosch appliances (including dual ovens and integrated dishwasher) for the state-of-the-art kitchen, this bold new design will feature luxury fittings (including toilets with in-wall cisterns, wall-hung vanities and dual-head showers) for the 5-Star bathrooms. Featuring stone benchtop and splashback for the high-end kitchen finish and waterfall-edge island bench on bold black and cool coastal oak cabinetry, the home’s interiors will feature sleek stacked-vertical and concrete-style porcelain tiles in wet areas, plus engineered flooring (downstairs) and premium carpets (above).
Following rigorous architectural ideals with lofty squareset ceilings (3m downstairs and 2.7m upstairs) punctuated by multiple Velux skylights, and living spaces walled by tall stacking-sliders, the home will feature every prestige appointment in an all-electric specification...even individual climate-control units and 3Phase power to boost future EV charging.
Looking towards tomorrow in Caulfield’s most future-forward locale, this ground-breaking offering has Caulfield Village retail shops and station within short walking distance, the family-friendly Racecourse parklands within a trot, and the CBD within a 22 minute commute. Perhaps most importantly of all, this winning home will have Monash University and Glen Eira College within a walk, highly-regarded Caufield Grammar within minutes, and the game-changing new campus of Mt Scopus Colleges coming soon.
For further information on this exciting opportunity to pre-purchase contact Melissa Hetherington at Buxton Glen Eira on 0432 935 111.
ALL ENQUIRIES MUST INCLUDE A CONTACT NUMBER.
