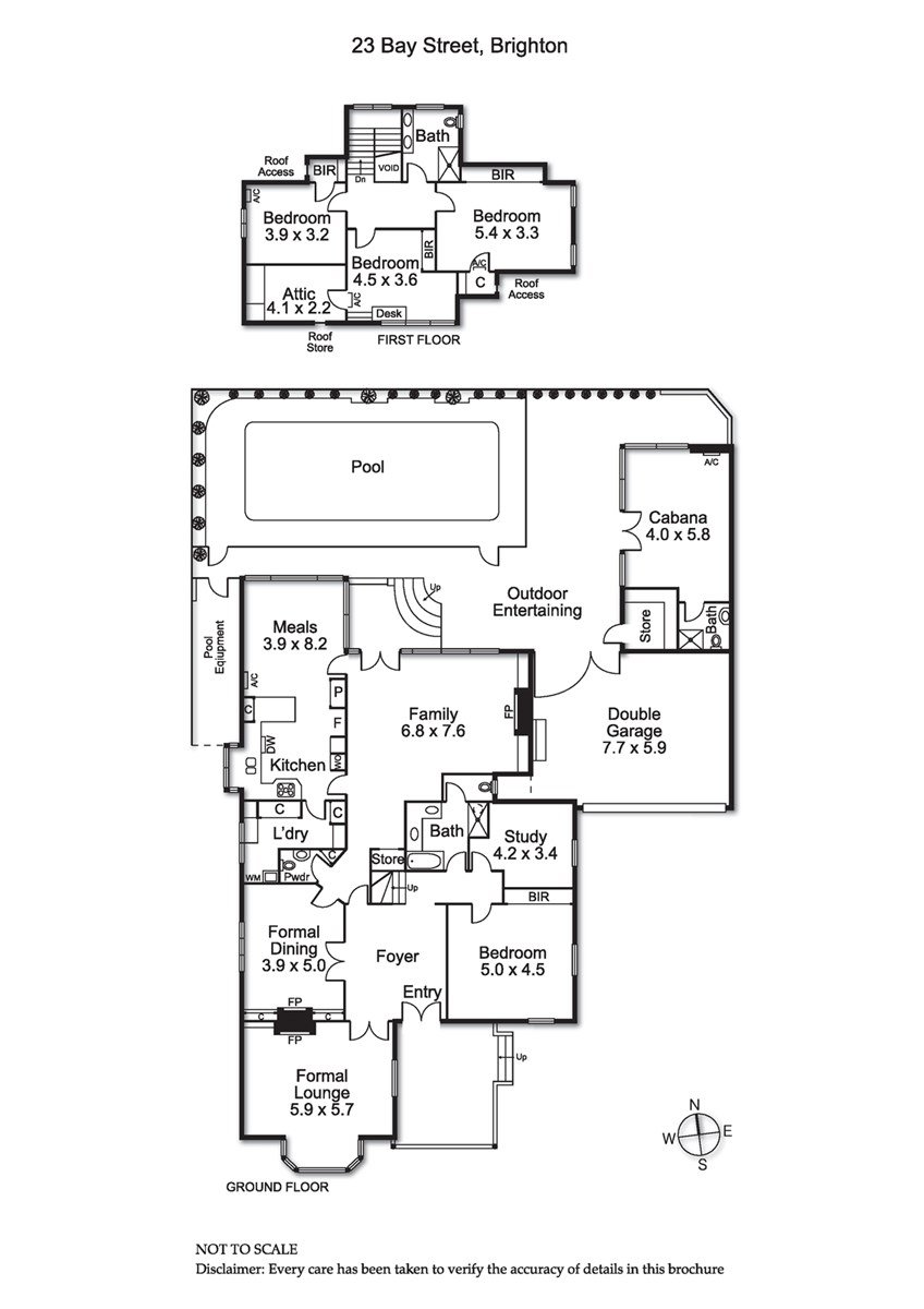
This solid-brick residence is situated on the prestigious Golden Mile and is graced with a sense of old-world Hollywood glamour. The 1920s family home offers grandly scaled entertaining and living zones including reception hall, an elegant lounge, formal dining room, and modern kitchen with Miele stainless steel appliances, family room overlooking...
This solid-brick residence is situated on the prestigious Golden Mile and is graced with a sense of old-world Hollywood glamour. The 1920s family home offers grandly scaled entertaining and living zones including reception hall, an elegant lounge, formal dining room, and modern kitchen with Miele stainless steel appliances, family room overlooking rear, fenced in-ground pool, casual meals, four bedrooms, study, two bathrooms, powder room and a separate poolside cabana with third bathroom. Features decorative ceilings, chandeliers, ducted heating, cooling, European gardens and triple lock up garage. What a fine opportunity to live among Brighton’s elite just footsteps away from the beach and within such close proximity to highly regarded schools, North and Middle Brighton Stations and the culinary delights, supermarkets, shops, designer boutiques and cinema complexes in Bay and Church Streets.
**To view inspection times please click on the 'BOOK INSPECTION' button, select a time that suits you and enter your full details to register. By registering you will INSTANTLY be informed of any updates, changes or cancellations to appointments. Alternatively if there are no suitable times available click Email Agent and we will be in contact with you. It is essential you enter your details to book an inspection time and to ensure you are kept updated with any changes.