This contemporary styled residence of meticulous design was conceptualised to suit a modern family lifestyle and is now available to discerning tenants seeking quality inner suburban real estate....
This contemporary styled residence of meticulous design was conceptualised to suit a modern family lifestyle and is now available to discerning tenants seeking quality inner suburban real estate.
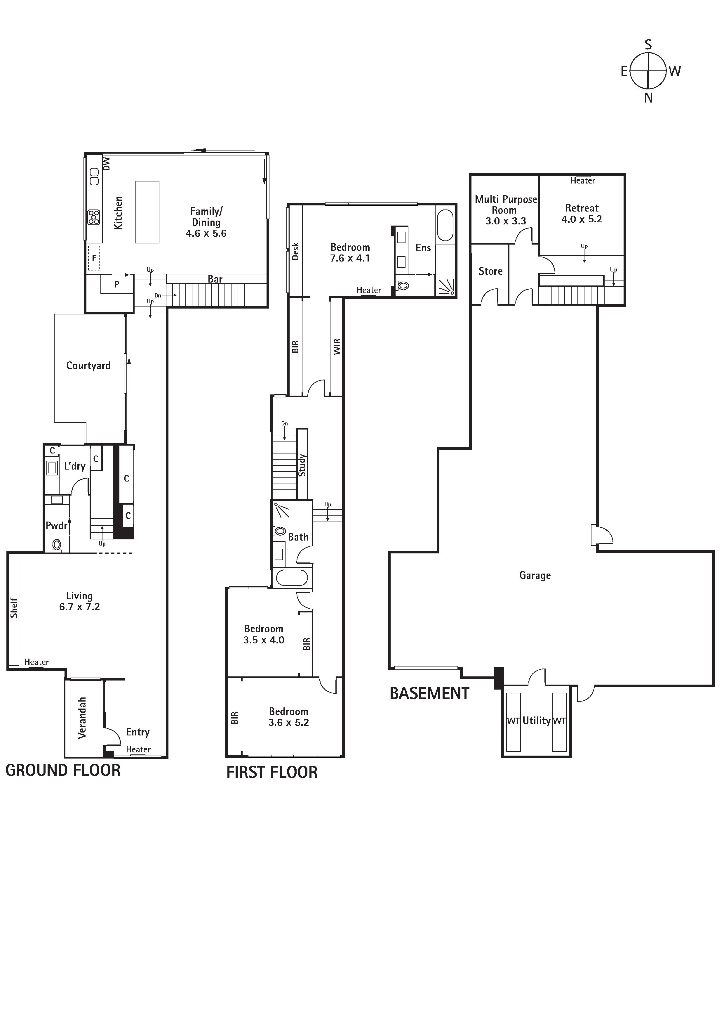
Fluid indoor-outdoor living offers endless entertainment opportunities and relaxed settings for intimate soirées. The modern contemporary aesthetic is true to form throughout and sets a scene for sophisticated living, while the building’s surrounds have been carefully cultivated to produce a low maintenance garden feel. Large windows cast a veil of natural light throughout the formal and informal living domains, whilst the below ground rumpus/media room and multipurpose rooms provide cosy private getaways from the hustle and bustle of modern life.
The kitchen is a gourmet dream created with superb attention to detail and with a host of luxury features including a walk-in pantry, a blend of imported marble and stainless steel work surfaces, Miele appliances incorporating integrated refrigerator, freezer and dishwasher.
With thoughtful zoning, 3 bedrooms have been located upstairs, with the master situated to the rear and separated by the study nook and main bathroom. Each bedroom comes with ample robe storage and are adorned by luxury carpets. The home is ably serviced by a powder room and two stunning bathrooms with the decor and fixtures befitting a property stylist magazine.
An impressive catalogue of additional features includes:
• Over 33 squares of internal living space
• 2 car remote basement garage with storage room
• Hydronic heating & comprehensive cooling system
• Extra tall ceiling heights
• Keyless gate entry
• European oak timber flooring
• Video security intercom
• Close to public transport (15 minutes to Flinders St)
• Variety of exclusive schools
+ much, much more……
This exclusive and private residence lies in a coveted pocket near Armadale station and High Street shopping precinct, which defines inner urban lifestyle.
**To view inspection times please click on the 'BOOK INSPECTION' button, select a time that suits you and enter your full details to register. By registering you will INSTANTLY be informed of any updates, changes or cancellations to appointments. Alternatively if there are no suitable times available click Email Agent and we will be in contact with you. It is essential you enter your details to book an inspection time and to ensure you are kept updated with any changes.
