The one you've had your eye on is ready for you to step up and take in the view. Showcasing a visionary design from Bayside luxury home developer, Silvio Morelli, this landmark residence takes its place at the apex of the Acorn Patch with a three bedroom, dual study area, 2.5 bathroom design oriented for views down the oak-tree avenue at every...
The one you've had your eye on is ready for you to step up and take in the view. Showcasing a visionary design from Bayside luxury home developer, Silvio Morelli, this landmark residence takes its place at the apex of the Acorn Patch with a three bedroom, dual study area, 2.5 bathroom design oriented for views down the oak-tree avenue at every turn.
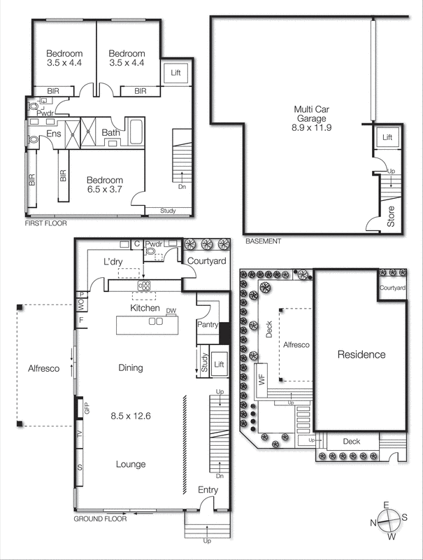
The premier north-end home in this elite group of three, this sun-bathed residence maximises north sun with expansive lounge-dining flowing to a vast al fresco living zone...and offers a panoramic perspective from the bedroom and fitted dressing area of the soaring (3.7m ceilinged) master suite. Set above private four car basement garaging, the home is architect-specified to an elite standard with a state-of-the-art Smeg and Emporite kitchen extending to a vast walk-in pantry, fully-tiled bathrooms with powder-rooms on each main floor, thick Quantum Quartz benchtops and rich limed European Oak for floors, stair and screening.
High-tech appointed with lift access over all three levels, the home features zoned ducted heating and air-conditioning plus in-floor bathroom heating, video intercom and keyless entry, alarm, sound-wiring, solar hot-water and ducted vacuum. Cleverly fitted with study areas upstairs and down, a gas-log fire in a wall of concealed Clef veneer media cabinetry. Even the outdoors combine Acorn Patch views and innovative architecture with the al fresco area set beneath a cantilevered roofline and bordered by a sculptural water-feature in an auto-watered landscape designed by award winning landscape designer Steve Taylor.
Just through the park from Sandringham Primary School, just a few blocks to the station, shops and bay, this is a Patch of perfection with the Patch as a front garden! For more information about this Acorn Patch landmark contact Christian Hegarty
Listing Website