Magnificently situated with a prestigious Brighton address, cornering Drake and Harwood Streets, this 4-bedroom plus study period residence is graced with outstanding options. Basking in north-westerly sun on 778sqm (approx) between the Golden Mile foreshore, parkland, schools and village shops – this is a rare opportunity to further enhance or...
Magnificently situated with a prestigious Brighton address, cornering Drake and Harwood Streets, this 4-bedroom plus study period residence is graced with outstanding options. Basking in north-westerly sun on 778sqm (approx) between the Golden Mile foreshore, parkland, schools and village shops – this is a rare opportunity to further enhance or start again in a prized lifestyle location.
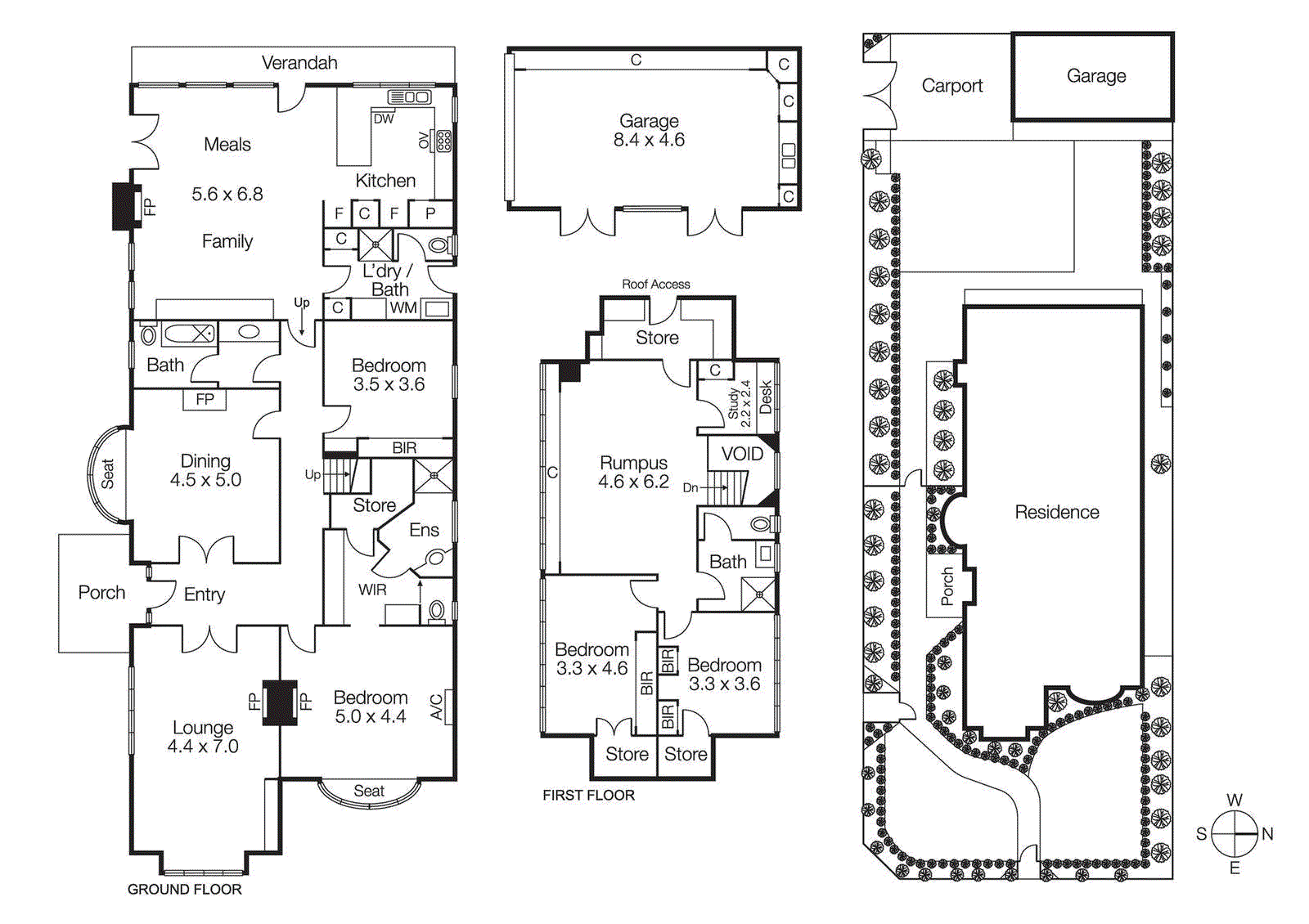
Currently offering impeccable zoning for families at every stage. Featuring grand formal lounge and dining rooms, both with open fireplaces, flanking a leadlight entry. A superb granite kitchen and light filled family living wrap glorious garden entertaining with al fresco style, while rolling lawns provide ample room and flexibility.
The custom built garage doubles as a huge rumpus or the ultimate man-cave with a wall of built in storage and wet area. Inside the upper level offers yet another living space and study. Generous accommodation includes 2-bedrooms (built in robes) on each level, ground floor master retreat with open fireplace, dressing area and marble en suite.
Fully appointed for immediate comfort with a family focused layout and scope to create a spectacular period showpiece with a value adding update. Or take advantage of the privileged corner position and sundrenched aspect with a new era of luxury living, subject to council approval.
For more information about this period home on blue chip land please contact David Hart on 0417 541 933 at Buxton Brighton.