Elegant Edwardian aesthetics have been beautifully transformed by a quality contemporary renovation in this irresistible three-bedroom period home just a short stroll from Chapel Street, Alma Park, the Astor Theatre and City trams. On a light filled corner, bathed in uninterrupted north easterly sunshine, stylish single level spaces combine their...
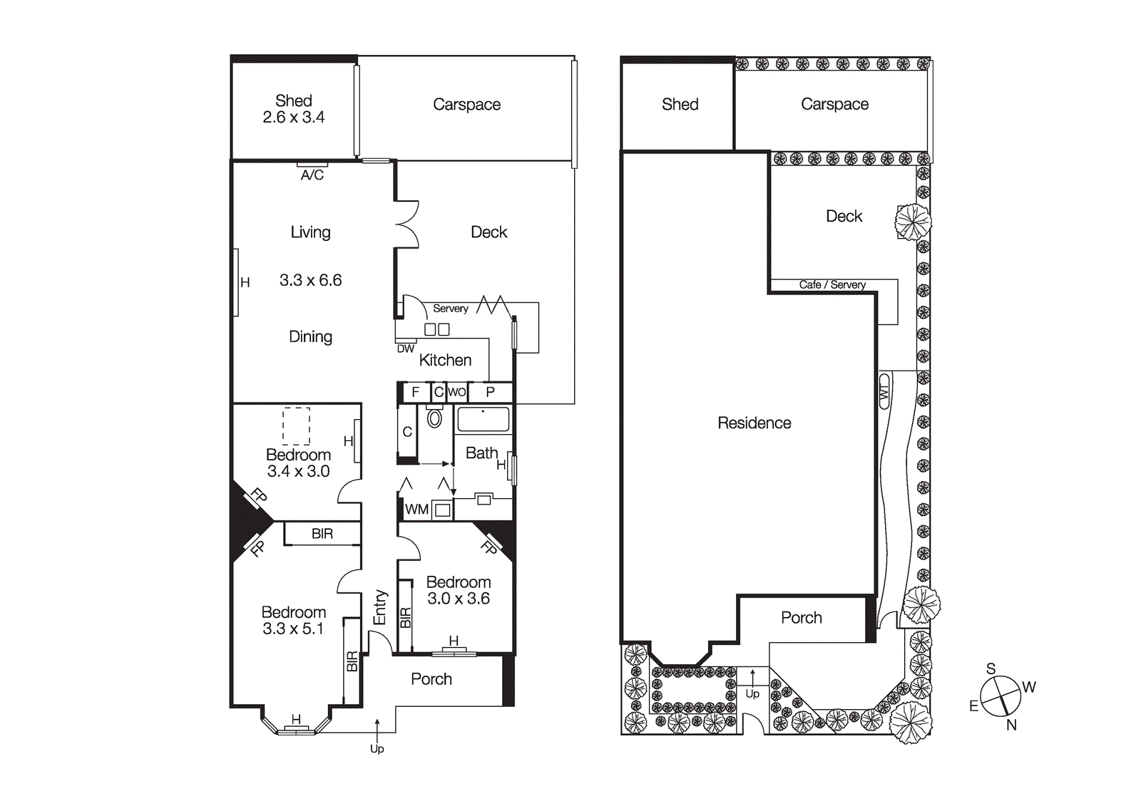
Elegant Edwardian aesthetics have been beautifully transformed by a quality contemporary renovation in this irresistible three-bedroom period home just a short stroll from Chapel Street, Alma Park, the Astor Theatre and City trams. On a light filled corner, bathed in uninterrupted north easterly sunshine, stylish single level spaces combine their rich c.1917 character with a sleek and sophisticated modern extension where innovative design delivers a seamless connection to the private rear entertaining courtyard. Behind a high fenced entry, a summer courtyard accompanies the home’s enchanting tuck-pointed façade introducing three bright bedrooms, all with high ceilings and decorative OFPs, one with BIRs, the master with extensive BIRs/storage and charming original bay window. At the rear, generous open plan living/dining areas are kept beautifully bright by high clerestory ceilings aside a cleverly designed smeg/Miele integrated kitchen whose bifold café window exposes the entire space to the seamless indoor/outdoor entertaining. Other highlights include a smartly updated designer bathroom with separate WC, full Euro laundry, hydronic heating, split cooling, original hardwood and polished concrete floors, alarm, solar panels and rain water recycling, double glazing at rear, roller garage/storage plus remote OSP. Walk to CBC and St. Michaels Grammar, Dandenong Road trams and Windsor Station, with easy access to other lifestyle hotspots including Carlisle and Fitzroy Streets, Prahran and even High Street Armadale.
ALL ENQUIRIES MUST INCLUDE A CONTACT NUMBER