You’ll be spoilt for choice living in this amazing Lowe Design home that delivers quality, functionality and the perfect beachside lifestyle with cafes, restaurants, public transport and sporting amenities all at your fingertips.
Combining streamlined style, expansive spaces, an abundance of storage space along with plenty of natural light this...
You’ll be spoilt for choice living in this amazing Lowe Design home that delivers quality, functionality and the perfect beachside lifestyle with cafes, restaurants, public transport and sporting amenities all at your fingertips.
Combining streamlined style, expansive spaces, an abundance of storage space along with plenty of natural light this opportunity is one not to be missed.
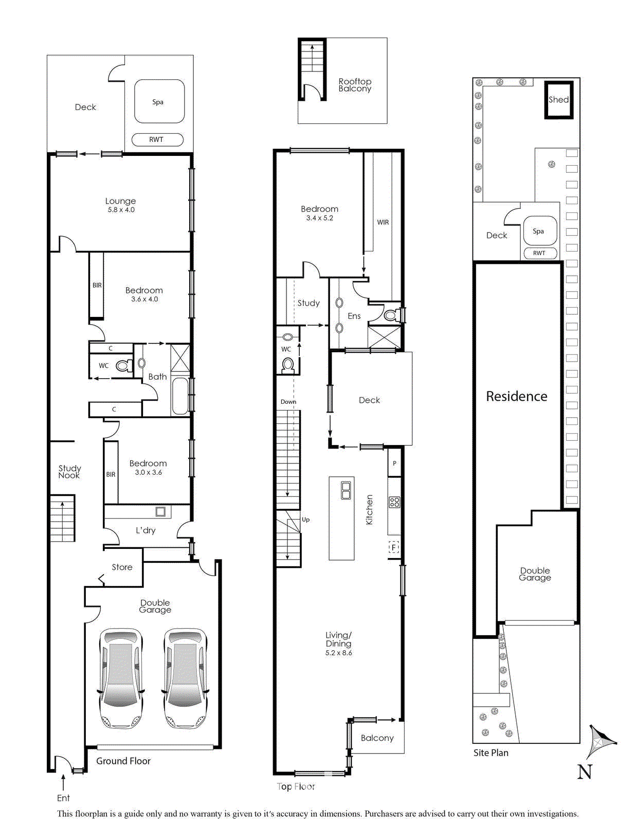
Ground Floor:
- 2 spacious bedrooms with fully fitted out built in robes
- Stunning spacious family bathroom with stone benches, bath, walk in shower and linking up to 2nd bedroom
- Separate powder room
- Laundry with heaps of cupboards, benchtop space and drying rack
- Study nook area
- Large lounge or optional 4th bedroom leading out to decked and grassed area with 6 seater spa
First floor:
- Large open plan living with stunning timber flooring flowing out to your private balcony.
- Designer kitchen with huge oversized stone Island bench, quality appliances, linking seamlessly with private internal timber deck which is protected for entertaining complete with water & gas point.
- Stylish ensuited main bedroom with huge walk in robe (1600 m x 5800).
- Study nook
- Powder room
The WOW factor continues with this home having a private roof top deck providing stunning panoramic views of the bay from Mount Martha to the city. You will be spoilt with all the modern comforts including zoned reverse cycle heating and refrigerated cooling, alarm, 5kw electrical solar system, in ceiling speakers along with external wired speakers to all outdoor entertaining areas, lounge with floor to ceiling windows coated with privacy film plus oversized remote double garage.