INSPECTION STRICTLY BY APPOINTMENT PLEASE EMAIL OR CALL THE AGENT
In one of Albert Park’s most beautiful period lined streets, an exciting opportunity exists to realise your bay/city side lifestyle dream with this generous 170sqm parcel featuring a prized northerly rear aspect and secondary access via Little Greig Street. Maximise the scope and...
INSPECTION STRICTLY BY APPOINTMENT PLEASE EMAIL OR CALL THE AGENT
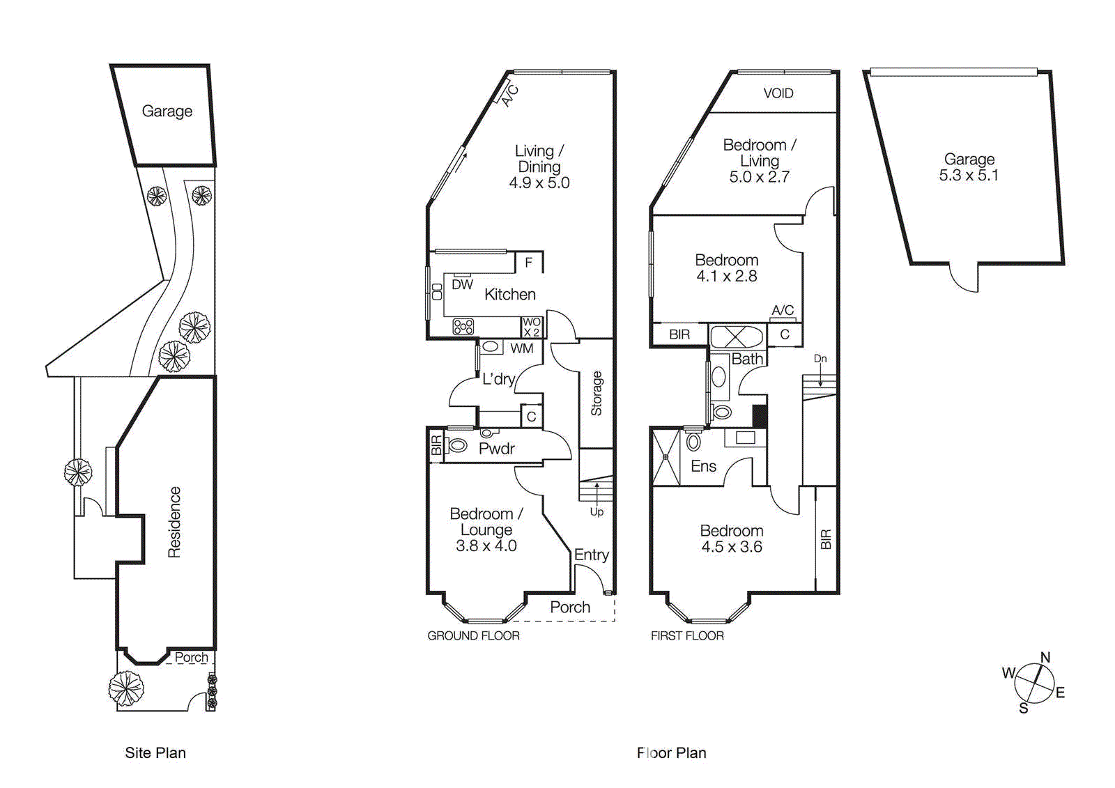
In one of Albert Park’s most beautiful period lined streets, an exciting opportunity exists to realise your bay/city side lifestyle dream with this generous 170sqm parcel featuring a prized northerly rear aspect and secondary access via Little Greig Street. Maximise the scope and scale of the block with a brand new state-of-the-art living and entertaining environment (STCA) that delivers a lifestyle like no other in Melbourne’s most elegant bayside neighbourhood. The existing 3-bedroom brick home provides comfortable accommodation with open living/dining area, a functional servery style kitchen, three upstairs bedrooms with BIRs, the main with ensuite, mezzanine study/fourth bedroom, family bathroom, laundry, sunny rear garden with big open blue sky and roller garage via Little Greig Street. Nestled amongst rows of pretty Victorian’s on one of Albert Park’s most prized tree lined avenues, your new home will be just a short stroll from Victoria Avenue cafes and trams, iconic Albert Park Village with its fashionable boutiques, celebrity eateries, shops and professional services, zoned Albert Park Primary and Albert Park College, Gasworks Arts Park, St Vincent Gardens, the beach with its foreshore bike and walking trails, Plum Garland Playground and recently completed South Melbourne Life Saving Club and Kiosk. Shop at South Melbourne Market, be at MSAC, Albert Park Lake or the City within minutes!
ATTENTION YOU MUST REGISTER TO BID AND ATTEND THE AUCTION