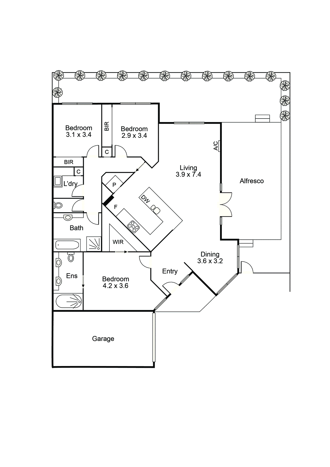
Individually styled and impeccably presented, this is singular single-level style! Uniquely designed and held by just one owner since new, this three bedroom, two bathroom rear home is a one-off single-level offering with extra-large extra-light living with a defined dining area, and well-zoned accommodation with a private master-suite to the front...
Individually styled and impeccably presented, this is singular single-level style! Uniquely designed and held by just one owner since new, this three bedroom, two bathroom rear home is a one-off single-level offering with extra-large extra-light living with a defined dining area, and well-zoned accommodation with a private master-suite to the front and kids’ (grand-kids’ or guests’) bedrooms in their own sensor-lit wing.
Built to a luxury specification with a Caesarstone and Blanco appliance kitchen at the heart of the living area and a sparkling skylit bathroom in each zone, this centrally heated and reverse-cycle air-conditioned home showcases a unique level of detail with solid jarrah floors plus the plushest carpets, multiple skylights, sleek timber venetians and great storage - including a walk-in pantry and angular walk-in-robe. There’s even a unique Japanese-style bath for the ensuite!!
The outdoors have an individual edge too – with a vast westerly covered deck as another living zone, a freshly lawned garden for pets and kids to play, and an auto-garage for peace of mind. Close enough to Coatesville Primary School to hear the bell ring, this singularly well-located home has Links shopping centre within a stroll, parks all around and the bus to stations and Chadstone at the end of the street.