INSPECTION STRICTLY BY APPOINTMENT PLEASE EMAIL OR CALL THE AGENT
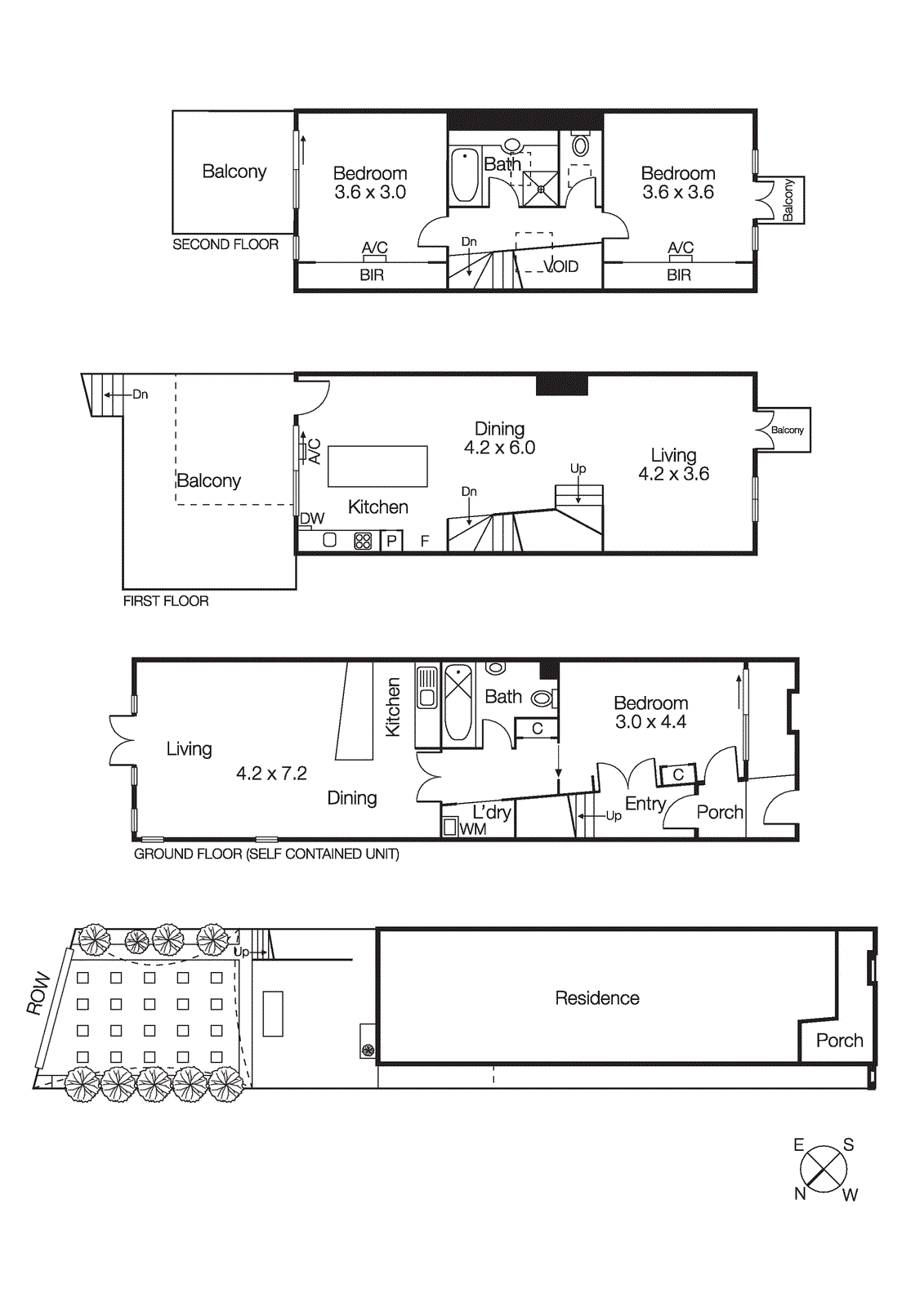
An extraordinary find in a sensational central location, this stylish modern townhouse’s versatile design is equally brilliant as two separate self-contained apartments as a spacious three-bedroom two-bathroom home. Positioned in an historic low traffic pocket just two doors from...
INSPECTION STRICTLY BY APPOINTMENT PLEASE EMAIL OR CALL THE AGENT
An extraordinary find in a sensational central location, this stylish modern townhouse’s versatile design is equally brilliant as two separate self-contained apartments as a spacious three-bedroom two-bathroom home. Positioned in an historic low traffic pocket just two doors from Evans Street’s parklands and light rail, this exceptional owner occupier and/or investment opportunity is only a short walk from Bay Street, the beach, Station Pier, Port Melbourne Primary, Albert Park College and even Gasworks Arts Park. On the ground floor, a bedroom/ home office with secure second entry flows to a nearby bathroom, Euro laundry and fabulous open plan living/dining domain with marble top kitchen unfolding to a paved alfresco courtyard and secure OSP via rear ROW. Above, the first floor comprises generous open plan living/dining areas and a smart stone finished family kitchen with central island, integrated dishwasher and excellent floor to ceiling storage flowing to a sensational entertaining terrace with striking CBD views. On the top floor, a spotless central bathroom and separate WC serve two oversized bedrooms with dual BIRs, one with a magnificent sun terrace offering iconic Eureka Tower views. Features ducted heating, split cooling, polished hardwood floors, double glazing, double blinds, security gate to two separate front entries and secure OSP for two. Enjoy as one home, perhaps rent the ground floor and live above or simply rent as two separate apartments in a fabulous location.