Primed to step out of the past and into the future at a prized Brighton East address, this versatile property comes with a substantial period home, approx 608sqm well-proportioned land …and a versatile future.
See the beauty in this solid-brick three bedroom plus study, two bathroom home, and work with a gracious dual zone floorplan featuring a...
Primed to step out of the past and into the future at a prized Brighton East address, this versatile property comes with a substantial period home, approx 608sqm well-proportioned land …and a versatile future.
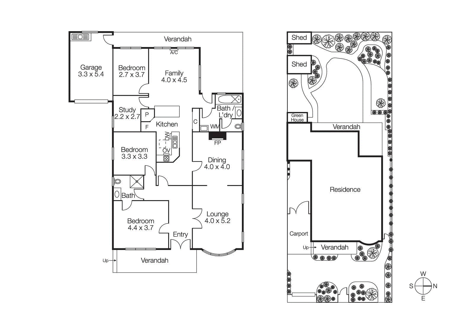
See the beauty in this solid-brick three bedroom plus study, two bathroom home, and work with a gracious dual zone floorplan featuring a beautiful bay- windowed lounge, separate dining and a sunny north-westerly family zone extending to a covered alfresco area. Rich with original detail including lavish leadlight and high decorative ceilings, this solid brick beauty offers a world of contemporary comfort with a modern skylit kitchen, well-positioned bathrooms (including a two-way ensuite), ducted heating and an inverter air-conditioner. Secured quietly behind high gated brick walls with parking, carport and garage, there’s solid liveability, ready-rentability and wonderful renovate-ability here.
Alternatively, see the versatility in this well-addressed site, consider the prestige home future of neighbouring properties, and bring your new home plans to this ready-to-develop land. Representing a rare opportunity to secure great Brighton East value in a fast-developing strip, there’s a big future here – enhanced by proximity to a handy local shopping strip and zoning for Brighton Secondary College.
For more information about this well-addressed property contact Bert Stewart at Buxton Brighton on 0418 350 199.
Expressions of Interest closing Saturday 4th April at 12:00pm.
INSPECTION BY APPOINTMENT ONLY.
To ensure the social distancing and public gathering guidelines set by the Australian Government are adhered to, it’s imperative you register to attend Buxton inspections. This will enable us to manage the number of people attending private inspections and co-ordinate with you a substitute time if required.
Please register to attend a private inspection at a Buxton property via the enquiry button on this page.
Please note that you may be declined entry to a private inspection or private auction if you have failed to register prior.