Brand new and beautifully designed to capture daylong sunshine, this luminous 4-bedroom, 3.5-bathroom completely detached residence delivers contemporary class with a Bayside address. Add to this an enviable lifestyle in Hampton East’s leisure precinct surrounded by leafy parks and sporting clubs with the beach, schools and shops nearby. ...
Brand new and beautifully designed to capture daylong sunshine, this luminous 4-bedroom, 3.5-bathroom completely detached residence delivers contemporary class with a Bayside address. Add to this an enviable lifestyle in Hampton East’s leisure precinct surrounded by leafy parks and sporting clubs with the beach, schools and shops nearby.
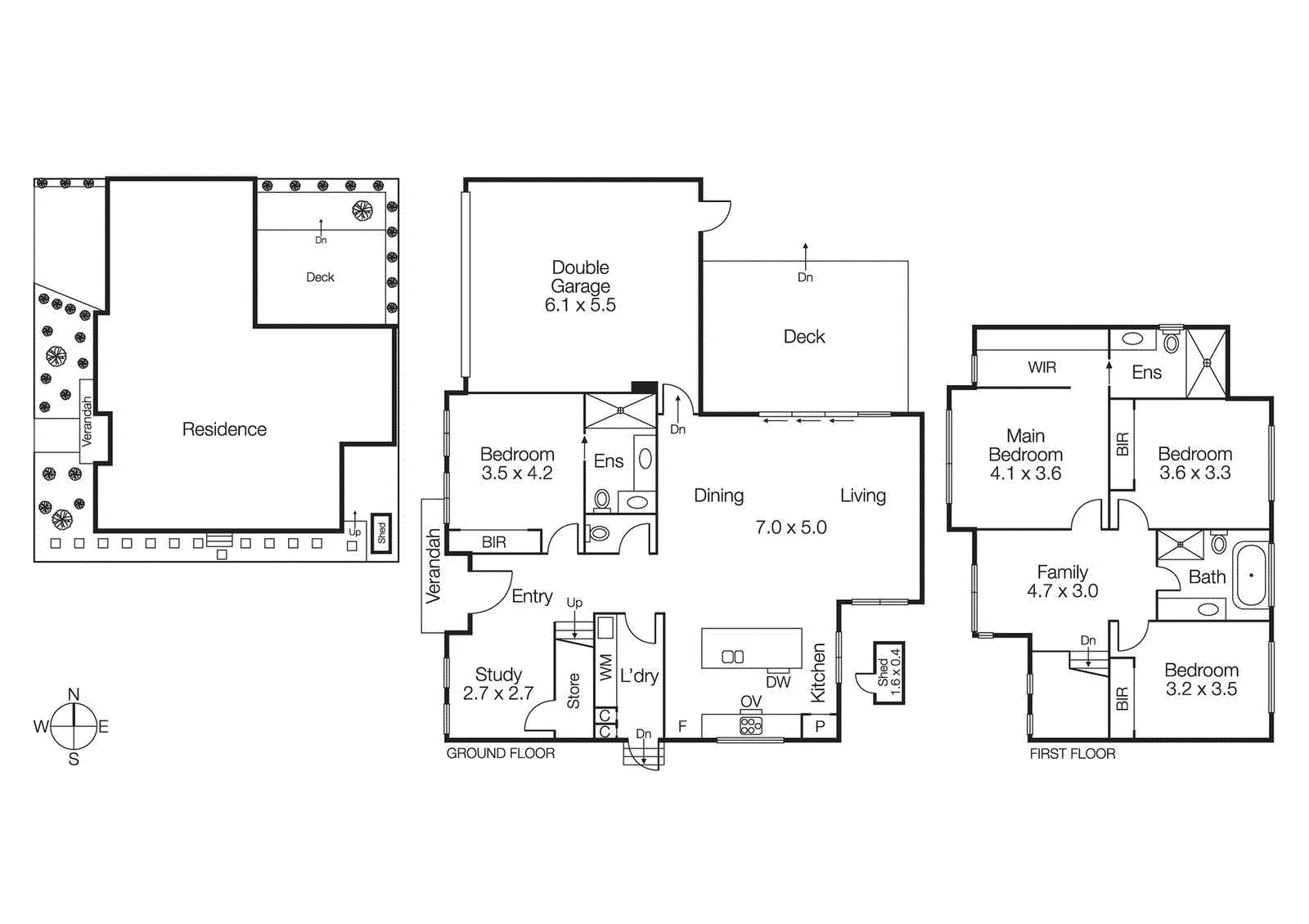
Superbly orientated to take advantage of a northwest corner position on the high side of the street, with expansive glazing and 3 metre high ceilings further accentuating a light filled layout. Perfectly zoned with a sought after study and guest or master bedroom (built in robes and en suite) downstairs, and retreat and master suite up.
Take indoor living out to a sunny, decked al fresco area privately fenced and landscaped. Inside a pendant lit kitchen stars with premium stone bench tops and waterfall island plus quality AEG appliances and soft close cabinetry. Even the laundry and powder room are topped with stone adding to an overall sense of style.
Luxury bathrooms address every need with marble-style porcelain tiles, sleek stone vanities, sophisticated black tapware and a full-size oval bath for the main. Upper level bedrooms (built in robes) include a master suite with deluxe en suite and walk in robe.
Climate controlled and alarmed with surveillance, secure, video intercom, remote control double garage (rear and front access). Low maintenance yet accommodating, this outstanding large downsizer or modern family home is close to Hampton Street’s shopping and dining strip as well as public transport, Sandringham Secondary, Haileybury and St Leonards.
For more information about this brand new town residence please call Ross Walker on 0425 836 613 at Buxton Brighton.