Inspect by private appointment or Virtual Tour via Facetime/Zoom. SMS or Call Daniel Keleher 0410 579 785 Spread across two expansive levels, this contemporary brand-new 4 bedroom, 2 living zone...
Inspect by private appointment or Virtual Tour via Facetime/Zoom. SMS or Call Daniel Keleher 0410 579 785
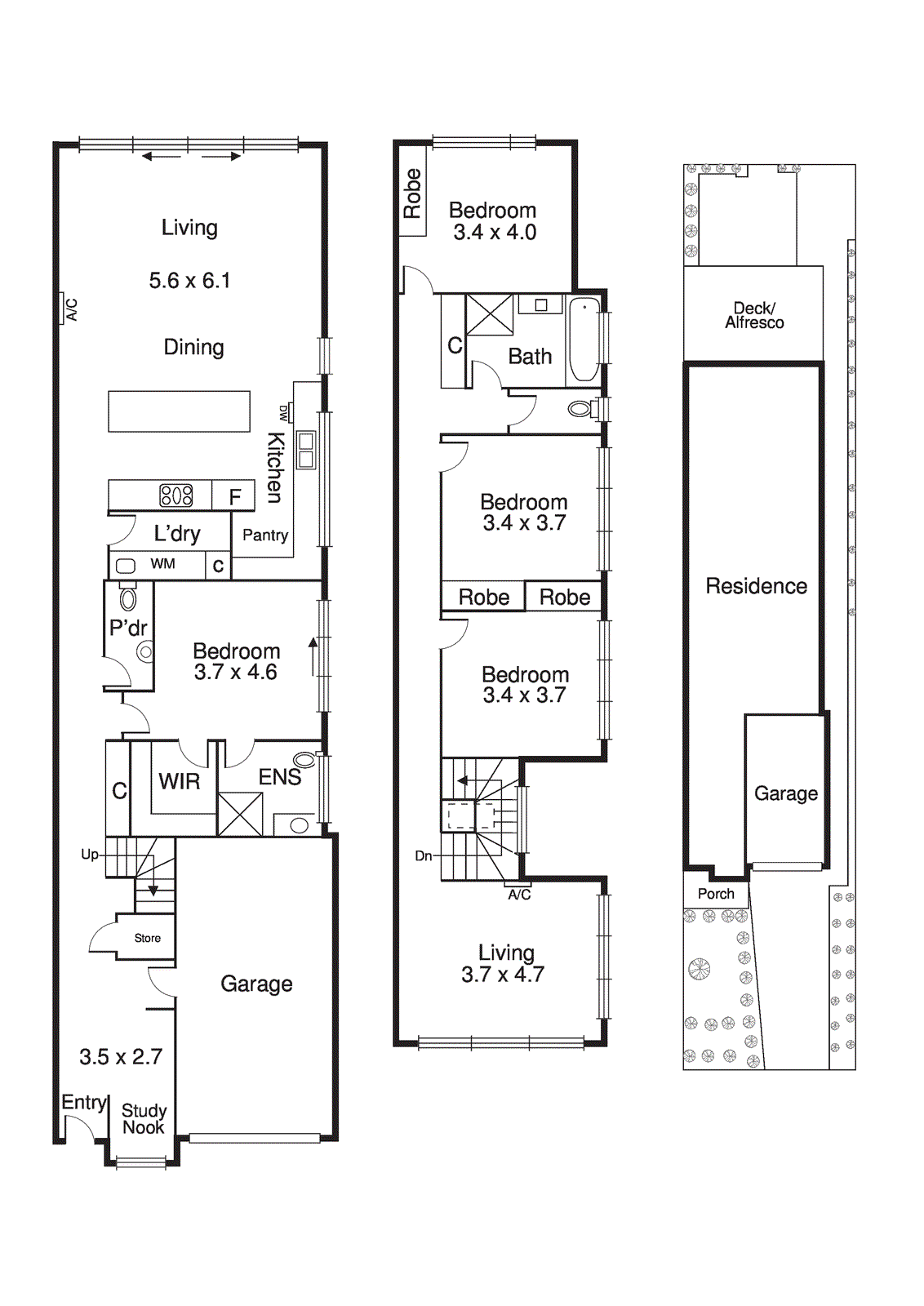
Spread across two expansive levels, this contemporary brand-new 4 bedroom, 2 living zone residence offers exceptional family living abutting Riviera Reserve - complete with direct gate access to green open spaces, playing fields and playground. With a focus on indoor-outdoor entertaining, spacious living and dining seamlessly extends onto a fabulous covered deck and garden. The stunning Bosch stone kitchen is complemented by a long island bench, clever butler’s nook and glass splash back. Completing this level is a blissful main parents retreat with luxurious ensuite and private outdoor access (WIR), full laundry and guest powder room. An exquisite timber staircase leads you up to softly carpeted accommodation with three spacious bedrooms (BIR), a sleek family bathroom, separate w/c and stylish second living area. Impeccably finished with ducted heating, split systems, ceiling fans, stone benchtops, under stair storage, single auto garage and off-street parking. Perfectly located within an easy walk to the beach, new Carrum train station, Riviera Pre-School, Seaford North Primary School, Patterson River Secondary, local IGA and cafes.
Private Inspections
The health of our valued clients and out staff is our utmost priority. To ensure your wellbeing at our private inspection, we kindly ask you to follow these safety measures.
• A maximum of 2 people, including the agent, may enter the property
• Maintain social distancing of 1.5m and 4m2 when indoors
• Please refrain from touching any surfaces including fittings and fixtures
We ask that you please refrain from entering a property if you:
• Are showing any flu-like symptoms
• Have arrived from overseas within the last 14 days
• Have been in direct contact with a known person who has travelled interstate or overseas
• Have been in contact with someone who has been diagnosed or exposed to COVID-19.
Virtual Auctions
During this time, some Buxton properties may be for sale via Virtual Auction.
What is a Virtual Auction?
A Virtual Auction is an auction conducted via an online platform with Buxton staff and registered bidders in attendance. Each registered bidder will be invited via a link to participate.
The Virtual Auction may be live streamed. You will be notified and provided all relevant information beforehand should this be the case. In order to attend a Virtual Auction, you must register to bid.
