Inspection By Appointment Only.
Situated at a prized beachside address, this approx 717sqm/7,717 sqft property comes with existing substantial family accommodation, scope for renovation and plans and permits for two 4 bed townhouses. Presents great choices with options for now and for the future.
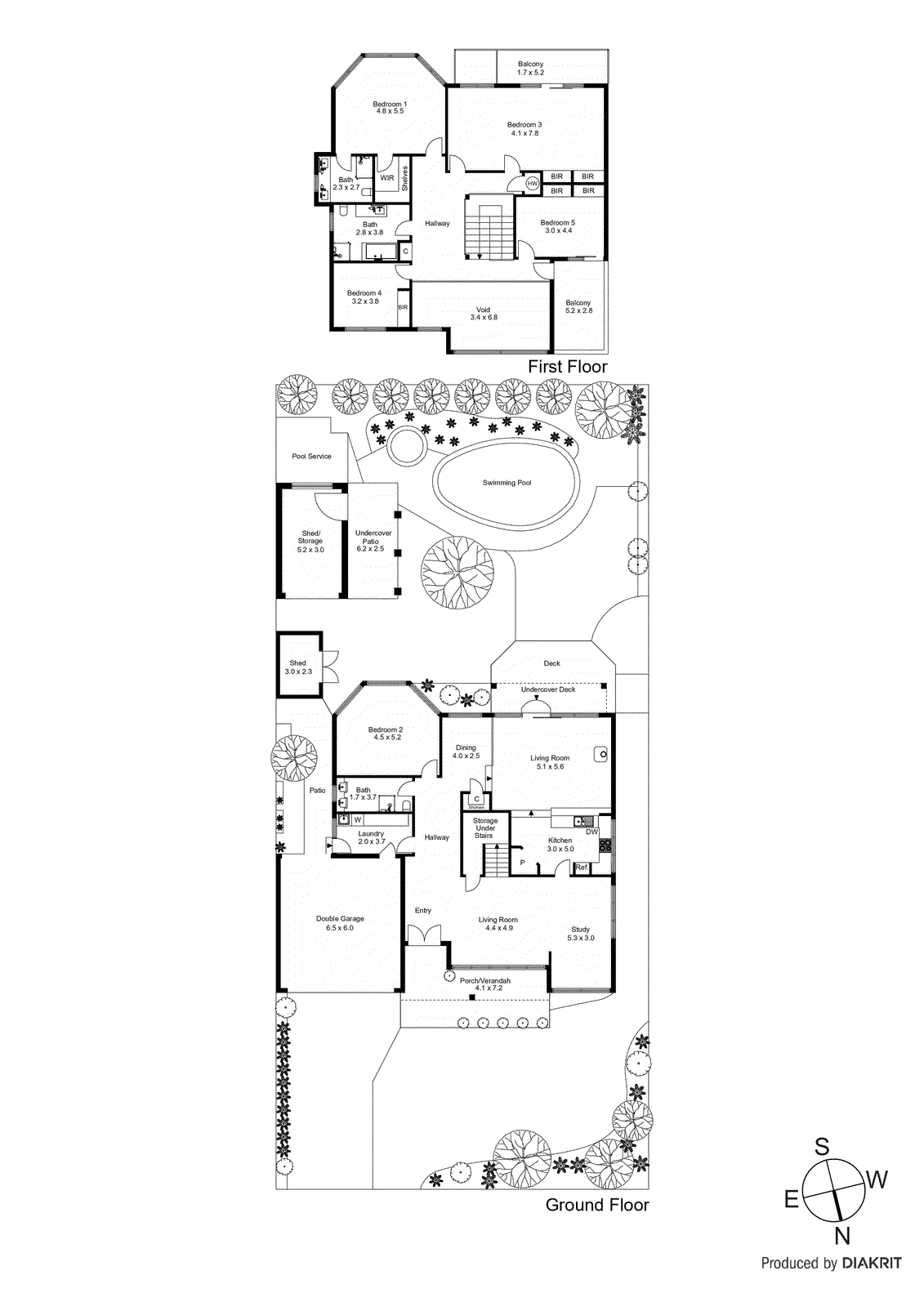
Be inspired by the adaptable floorplan of...
Inspection By Appointment Only.
Situated at a prized beachside address, this approx 717sqm/7,717 sqft property comes with existing substantial family accommodation, scope for renovation and plans and permits for two 4 bed townhouses. Presents great choices with options for now and for the future.
Be inspired by the adaptable floorplan of this five bedroom, three bathroom home and work with versatile multi-living, dual balcony accommodation featuring a sun-filled formal zone beneath a soaring void, parquetry-floored family living with a pool view, and a sizeable media lounge - perfect to convert as a ground-floor master or guest suite.
At the very least, with an existing first-floor master-suite (with walk-in-robe and ensuite) and a quality Bosch appliance kitchen, this centrally heated, air-conditioned home with heated pool, double auto-garage and workshop (or future cabana) will pay its way until it’s time to bring your dream home vision to life … or see through the already approved dual occupancy development.
Just 100m to the Concourse, a little further to Beaumaris Primary School, a few blocks to the bay, and in-Zone for in-demand Beaumaris Secondary College...you can plan on rewards here!
For more information about this well-addressed opportunity, please contact Christian Hegarty or Louise Herterich.