Step up from the sand and into a luxe low-maintenance lifestyle in the Dress Circle. The latest project from PMC Group and Pink Architects, this four bedroom, three bathroom approx 34sq home takes centre-stage with living upstairs, downstairs, inside and out, suites on each level …and a wide open northerly aspect maximised by walls of...
Step up from the sand and into a luxe low-maintenance lifestyle in the Dress Circle. The latest project from PMC Group and Pink Architects, this four bedroom, three bathroom approx 34sq home takes centre-stage with living upstairs, downstairs, inside and out, suites on each level …and a wide open northerly aspect maximised by walls of double-glazing onto carefree wraparound surrounds.
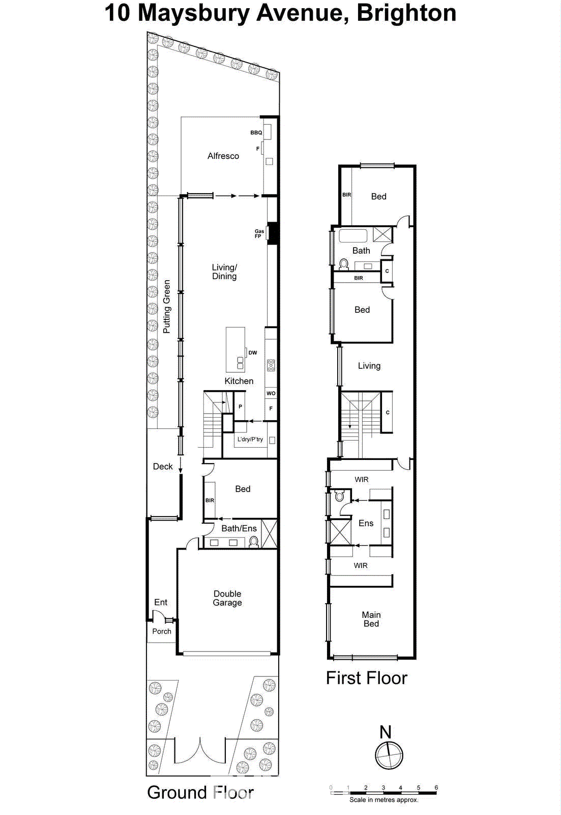
Detailed in signature style with a streamlined Miele appliance kitchen (with integrated Hafele fridge) fronted by a massive Alba marble bench, there’s a versatile laundry/butler’s pantry with Miele washer-dryer combo and a second BBQ kitchen for the granite paved al fresco area.
Putting a sunset-view city-glimpse master domain in the spotlight with dual dressing-areas and a dual-vanity ensuite, this luxurious home features bespoke bathrooms tiled floor-to-ceiling with Carrara-style porcelain, and custom 2-Pack and Natural Oak joinery including streamlined robes, buffet cabinetry and sculptural wine-racking. Styled with thick stone benchtops, wideboard European Oak floors, 3m ceilings and the latest bold black tapware, there are automated blinds covering vast sheets of commercial-quality double-glazing, smoked mirror splashbacks reflecting back north sun, and a smooth polished concrete render to add distinction to the imposing façade.
In this grand design every detail is considered, from separate climate-control systems upstairs and down plus an eye-catching -wide gas-fire, to the security of video-intercom, alarm and Smartphone CCTV, to clever touch-press LD Clipsal switches. There’s even a 82” flat-screen TV fitted to the media recess. With 4-car auto-gated parking including double garage, even the grounds put on a show; with a creatively carefree landscape including an elevated putting-green.
Directly above the iconic bathing boxes and just two blocks to the stairs to the sand and Lifesaving Club, this Dress Circle showpiece is within a stroll of Brighton Beach station and Were St Village, minutes to all the schools and Church St, and a beachfront cycle to the CBD.