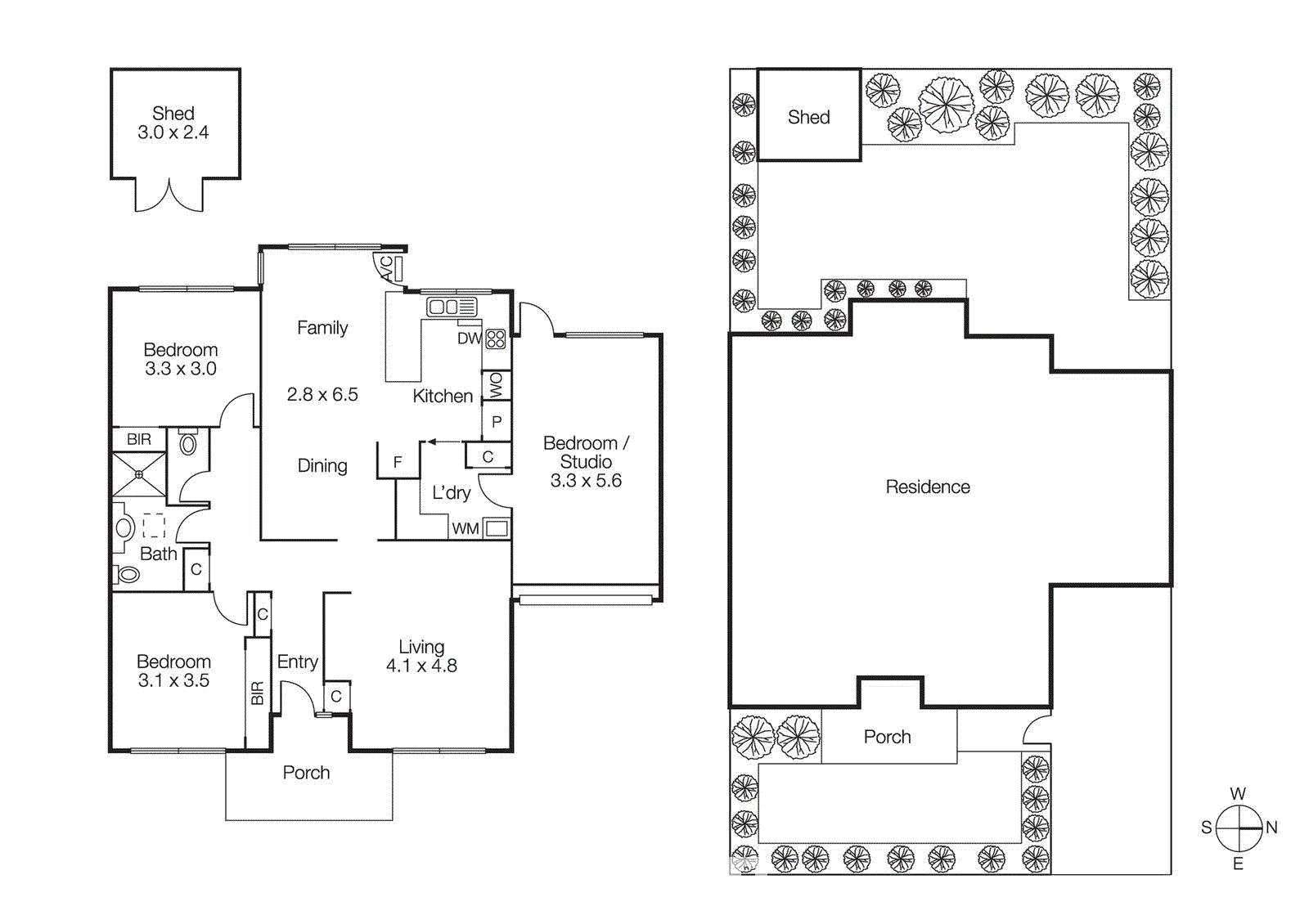
Superbly positioned in a premium Brighton Beach pocket a few metres to Were Street village, this 3-bedroom, single level sanctuary offers the perfect lifestyle. Street-fronted and private with gated front and rear gardens, this property is more like a low maintenance home than a villa residence.
Floral gardens and a timeless façade...
Superbly positioned in a premium Brighton Beach pocket a few metres to Were Street village, this 3-bedroom, single level sanctuary offers the perfect lifestyle. Street-fronted and private with gated front and rear gardens, this property is more like a low maintenance home than a villa residence.
Floral gardens and a timeless façade introduce an easy living layout graced with period-inspired style. Picture windows and extra high ceilings accentuate beautifully zoned living spaces including an inviting lounge and separate dining area. A gorgeous courtyard, basking in northwesterly sun, is generous and secluded creating the ideal setting for al fresco entertaining, children or pets.
A classically appointed kitchen, featuring quality appliances (dishwasher and brand new range hood), wrap around benches and a breakfast bar, looks out to the leafy courtyard. An adjoining laundry is well position and offers access to a versatile third bedroom conversion that could easily double as a home office or ideal teen retreat.
Two further bedrooms, boasting built in robes and garden vistas, are peacefully zoned with the shared use of a central bathroom and second WC. Ducted heating, reverse cycle cooling, watering system and full-size shed plus driveway parking.
Leave the car at home and enjoy immediate proximity to local favourites Olie & Ari and the Brighton Grocer as well as the bus to Chadstone, the train to the city and a short walk to the beachfront. Exclusive schools, Xavier Kostka Hall, Haileybury and St Leonard’s, are also close by, adding to the broad appeal of this impeccably presented home.
For more information about this sought after, single level please call Stefan Whiting on 0411 473 153 at Buxton Brighton.