Brand new, bold and beautiful, this up to 3-bedroom, 2.5-bathroom contemporary residence sets the benchmark in urban luxury. Tucked away to enhance total privacy, Architect designed to maximise space & light, and finished to the highest standard. Delivering a sought after lifestyle with lock and leave convenience this low maintenance home exudes...
Brand new, bold and beautiful, this up to 3-bedroom, 2.5-bathroom contemporary residence sets the benchmark in urban luxury. Tucked away to enhance total privacy, Architect designed to maximise space & light, and finished to the highest standard. Delivering a sought after lifestyle with lock and leave convenience this low maintenance home exudes effortless sophistication throughout fluid open plan spaces embraced by radiate northerly light.
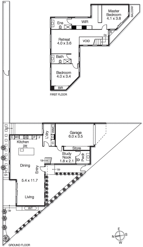
European Oak floors flow through an expansive, glass wrapped living domain showcasing a spectacular epicurean kitchen with stylish pendants lighting a sleek Caesarstone island plus quality Bosch appliances and ample soft touch cabinetry. Tall glass stackers seamlessly extend entertaining out to a sundrenched, decked courtyard set in landscaped gardens. Thoughtful attention to detail sees the under stair area utilised as a perfect study space while the oversized guest powder room is sure to impress.
Up a hard wood & glass detailed staircase the luxurious theme continues with extra high ceilings and a stunning open plan retreat providing a coveted second living zone that could easily accommodate a third bedroom if desired. The indulgent master suite is akin to that of a 5 star hotel featuring tree top balcony, his & hers fully fitted dressing room and sublime en suite with C'stone vanity, sleek black tap ware, dual head frameless glass shower and bespoke basin. The second bedroom, fitted with built-ins, and the main bathroom mirror the same exacting standard of the master suite.
Climate controlled and alarmed with a deluxe stone-topped laundry plus external drying deck, double glazed windows, 3,000l water tank and direct home entry via an automatic garage with a wall of storage. Access is from the lane with secure video intercom or a pedestrian gate on Thomas Street. Executive couples, young modern families and those looking to down scale without compromise will appreciate the high-end design and central locale.
For more information about this brand new executive residence please contact Tom Davidson at Buxton Brighton on 0488 017 500.
Listing Website