Embodying all the elements that have made the homes of iconic designer-builders, Fasham Johnson, so desirable for almost 40 years, this substantial single-storey home provides the perfect confluence...
Embodying all the elements that have made the homes of iconic designer-builders, Fasham Johnson, so desirable for almost 40 years, this substantial single-storey home provides the perfect confluence of high-integrity design, in-demand detail and innovative liveability. .
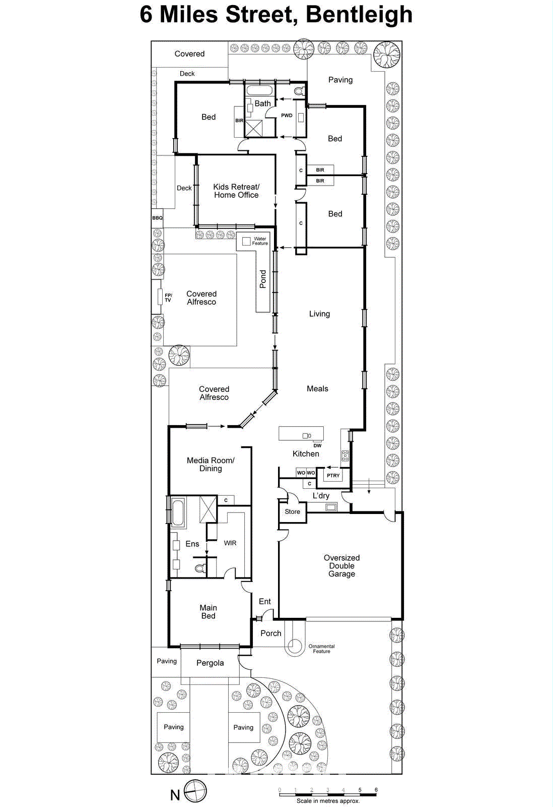
Showcasing Fasham’s signature commitment to light and lofty spaces with three adaptable living zones wrapping an artfully-constructed entertainers’ garden, this four bedroom, 2.5 bathroom home faces due north with a glass-walled family-zone rising to a contemporary clerestory roofline…and provides quiet escapes to a sophisticated formal lounge (wired for home-entertainment) and a versatile children’s retreat (currently fitted as work-from-home-office).
Styled to suit every size and shape of family with a very private master-suite (with dual-vanity spa-ensuite, walk-through-robe and walled garden outlooks), this architectural home zones secondary double-plus bedrooms in a quiet rear wing…and offers elite all-weather al fresco entertaining in a central pavilion - complete with gas-fire and media wiring.
Simply state-of-the-art with a full complement of Miele appliances (including espresso maker) plus a butler’s pantry for the soaring sunlit kitchen, the home is finished to a demanding specification with granite benchtops, industrial-grade wool carpets, Villeroy and Boch whiteware and Italian tapware – even heated towel-rails…all set beneath up to 3m ceilings.
Climate-controlled over two zones with alarm, intercom, double-glazing, Cat5 cabling and 14 solar energy panels, the home is set in perfectly-utilised lawn-free approx 704sqm grounds with a double-plus auto-garage. Cocooned by timber, metal and vertical garden screening with extensive bluestone paving and Merbau decking, these creatively landscaped surrounds provide multiple weather-sheltered and pergola-shaded spaces to entertain, relax and hang around with the kids.
Quietly cul-de-sac located just two doors from Victory Park, this is iconic custom-built style in an unparalleled family lifestyle location – a walk across the park to the shopping village and station, minutes to Brighton’s cafe society and private schools, and in Zone for in-demand Brighton Secondary College.
