Enter via Queens Lane. More like a sleek sophisticated townhouse than a centrally located inner city apartment, this dual level three bedroom two bathroom penthouse apartment offers superb space, designer style and brilliant lock up and leave liveability on the City fringe. Facing north from its top floor position in “Lakeside”, magnificent views...
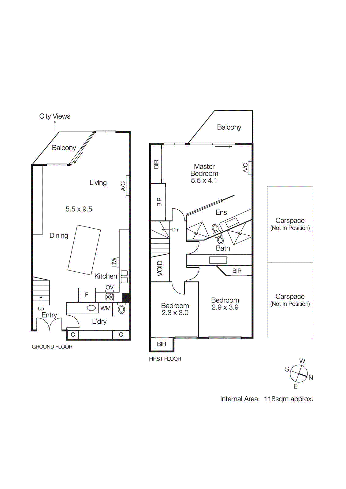
Enter via Queens Lane. More like a sleek sophisticated townhouse than a centrally located inner city apartment, this dual level three bedroom two bathroom penthouse apartment offers superb space, designer style and brilliant lock up and leave liveability on the City fringe. Facing north from its top floor position in “Lakeside”, magnificent views from the tree tops of Albert Park Golf Course to the CBD skyline accompany its enviable accommodation that’s perfectly positioned to enjoy the delights of Albert Park Lake, the CBD and Arts Precinct, the Bay and even South Yarra. At entry level, concrete floors add an industrial edge to generous open plan living areas that feature media storage, a balcony and a simply brilliant entertainer’s kitchen sporting Corian benchtops, quality appliances, large central island and endless storage. Upstairs, the main bedroom with extensive robes/storage and ensuite is made unforgettable with breathtaking CBD views from your pillow and shower whilst a large principle bathroom serves two additional bedrooms. Other highlights include a spacious downstairs laundry with WC, excellent storage, designer pendant lighting, reverse cycle heating/cooling, intercom security, lift access, two car parking and resident’s pool/gym. Walk to St Kilda, Toorak and Commercial Road trams, cafes, Fawkner Park and Albert Park Lake, minutes to Chapel Street, Prahran Market, CBD.