Sitting in an exclusive pocket of Newtown and within walking distance to some of Geelong’s finest schools, this stylish 4 bedroom home offers an exceptional lifestyle opportunity.
This lovely property comprises two open plan living areas complemented by spacious light filled courtyards just perfect for entertaining family and friends. The...
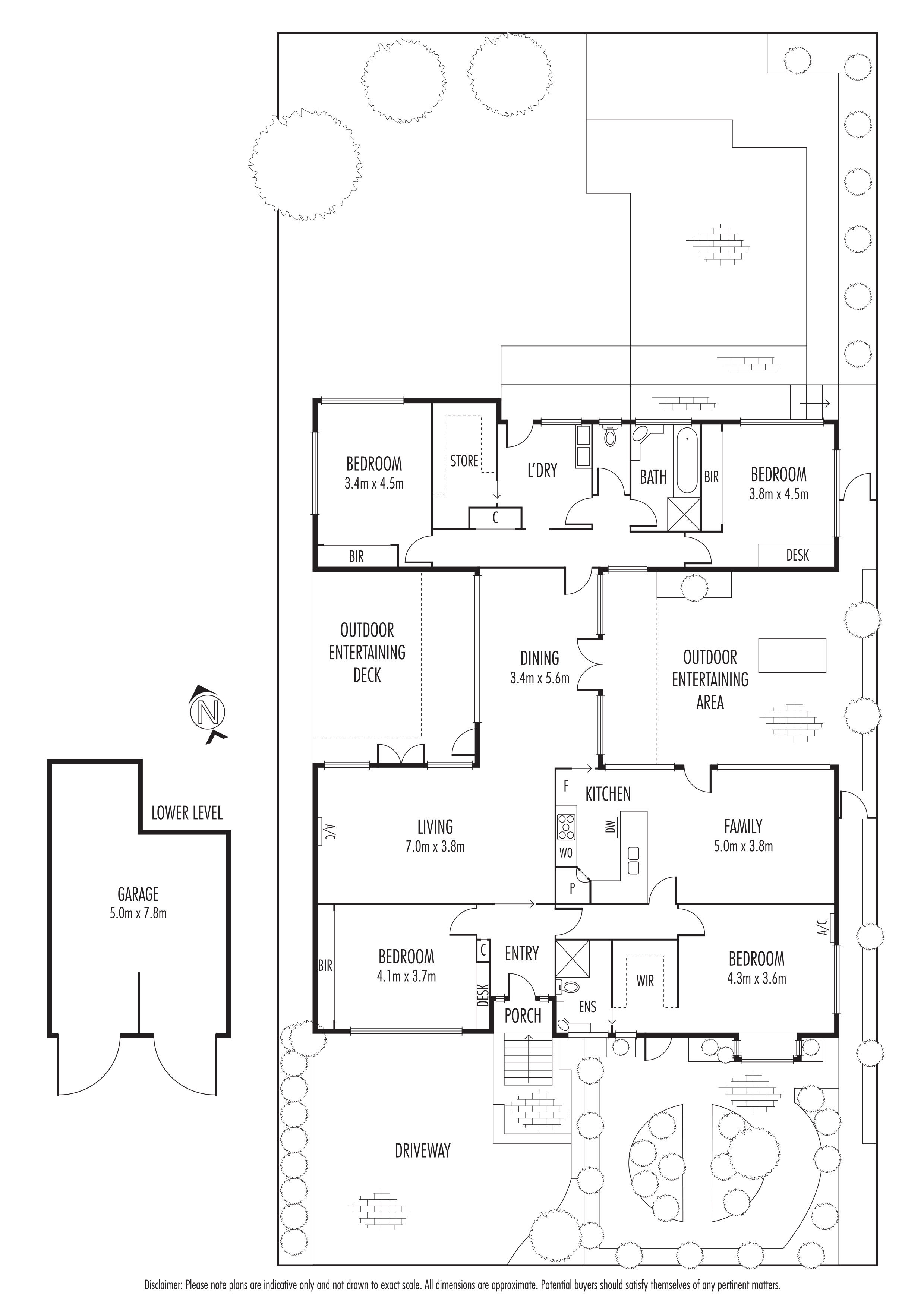
Sitting in an exclusive pocket of Newtown and within walking distance to some of Geelong’s finest schools, this stylish 4 bedroom home offers an exceptional lifestyle opportunity.
This lovely property comprises two open plan living areas complemented by spacious light filled courtyards just perfect for entertaining family and friends. The spacious master bedroom boasts a walk in robe with ensuite with the second bedroom also at the front of the property. The additional two bedrooms are located at the rear of the home serviced by the central bathroom providing two separate living zones. The kitchen offers stainless steel cooking appliances and ample storage cupboards along with a separate dining room. Equipped with central heating, split system air conditioning, data points throughout the house as well as a double garage. Positioned in a beautiful tree lined street this outstanding home is set amongst some of Geelong's premium real estate affording relaxed, private living.
(Please note that Buxton do not advertise any property listing on the website ‘Gumtree’. If you have found a property listed with the same address and photos as this listing please do not pursue the listing with Gumtree. Please report to a Buxton office. Thank you.)