Located in the ever sought after Tandora Estate, right in the heart of Buninyong, this home is perfectly positioned alongside the beautiful Buninyong Golf Course, rolling hills, walking tracks and beautiful parklands. This impressive home will delight from the moment you arrive featuring nothing but class, style and sophistication.
Upon entry...
Located in the ever sought after Tandora Estate, right in the heart of Buninyong, this home is perfectly positioned alongside the beautiful Buninyong Golf Course, rolling hills, walking tracks and beautiful parklands. This impressive home will delight from the moment you arrive featuring nothing but class, style and sophistication.
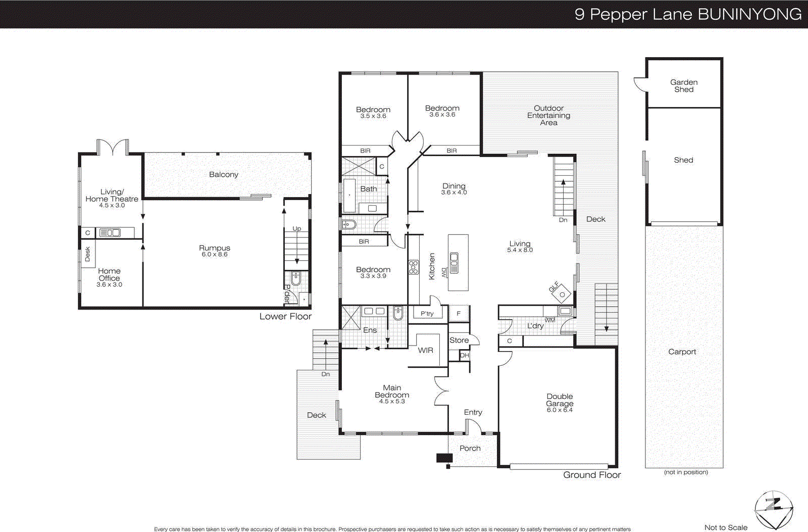
Upon entry you are greeted by a spacious entrance with stunning bamboo flooring which flows throughout the home.
The capacious master bedroom is complemented with a large walk-in robe, separate ensuite with double vanity and double shower, separate toilet and a private decked courtyard.
The kitchen is sure to impress featuring a Blanco 900mm has range and electric oven. A plethora of storage, dishwasher, double sink, Caeser stone bench tops with waterfall edges.
Bathed in natural light the family living area has high raked ceilings and clerestory windows. In addition to central heating and cooling a gas log fire provides a cheery ambiance.
An oversized alfresco area with both ceiling and exhaust fans and a backdrop of breathtaking views makes this a perfect area for entertaining family and friends.
From the dining area a separate hallway leads to three good sized bedrooms all with tv points and built in robes. Adjacent to this area is the main bathroom complete with a free-standing bath, walk-in shower and separate toilet.
Downstairs holds a massive self-contained area with a large living space, kitchen, study with tv points and a separate toilet. An ideal space to work from home or teenager’s paradise.
Outside are double electric gates to the side of the house with driveway access to an additional lockup garage and carport long enough for several cars. Call now to book your very own private inspection today.