You MUST register for an inspection and we ask that you also confirm your attendance. AN AGENT WILL NOT BE PRESENT IF YOU DO NOT REGISTER and CONFIRM. Your consideration and co-operation is appreciated.
Beachside living blending deluxe spaciousness with quality finishes to suit the most discerning whilst delivering every feature that's on your...
You MUST register for an inspection and we ask that you also confirm your attendance. AN AGENT WILL NOT BE PRESENT IF YOU DO NOT REGISTER and CONFIRM. Your consideration and co-operation is appreciated.
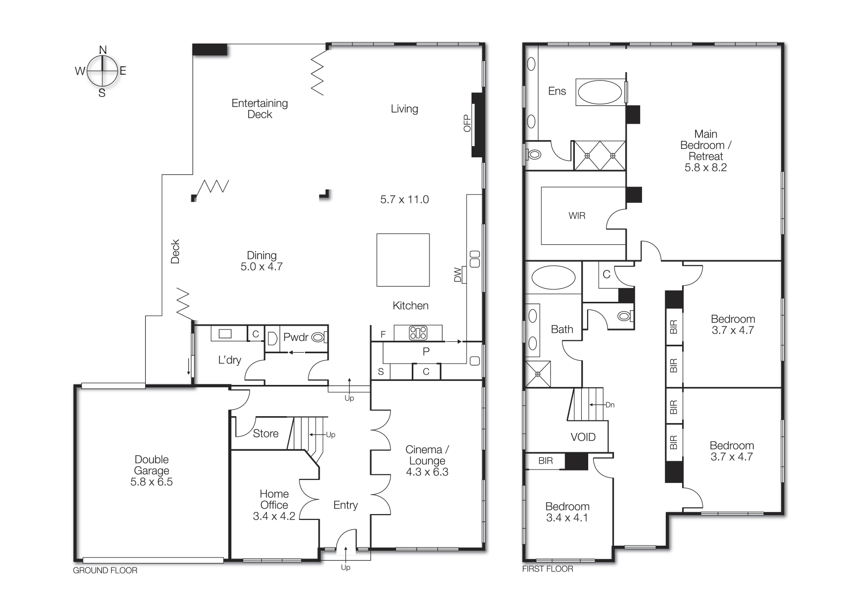
Beachside living blending deluxe spaciousness with quality finishes to suit the most discerning whilst delivering every feature that's on your dream home wish list. This property has a superb interior and established landscaping perfect for entertaining. Indoor-outdoor living centres around an expansive family room opening onto a covered alfresco area. Upstairs offers four double sized bedrooms (main room larger than most living areas), central bathroom with double sinks shower and separate bath, oversized ensuite bathroom, featuring double shower, central bath tub, double sinks and plantation shutters, Downstairs comprises the option of a movie room or a formal lounge, office/study and an open plan living with all the room you've been looking for. The stunning kitchen is custom-designed with a butler's pantry, Ilve appliances, integrated dishwasher and many metres of stone bench space, offering the perfect gourmet domain. The design delivers excellent practicality for family living, bi-fold doors for seamless spaciousness, and areas for quiet relaxing. Premium features are everywhere ...hardwood flooring, stone benches, plantation shutters, two ducted heating and cooling units, gas log fireplace, automatic gates and garage, ducted vacuum system, intercom, alarm system and all within a short stroll to local shops, cafes, restaurants, beach and transport.
**To view inspection times please click on the 'BOOK INSPECTION' button, select a time that suits you and enter your full details to register. By registering you will INSTANTLY be informed of any updates, changes or cancellations to appointments. Alternatively if there are no suitable times available click Email Agent and we will be in contact with you. It is essential you enter your details to book an inspection time and to ensure you are kept updated with any changes.**