Behind a striking architectural facade, this sophisticated 4 bedroom, 2.5 bathroom multi-level residence is impressively proportioned and impeccably finished to cater to every modern family...
Behind a striking architectural facade, this sophisticated 4 bedroom, 2.5 bathroom multi-level residence is impressively proportioned and impeccably finished to cater to every modern family requirement with efficiency, flair and a wonderful sense of refinement.
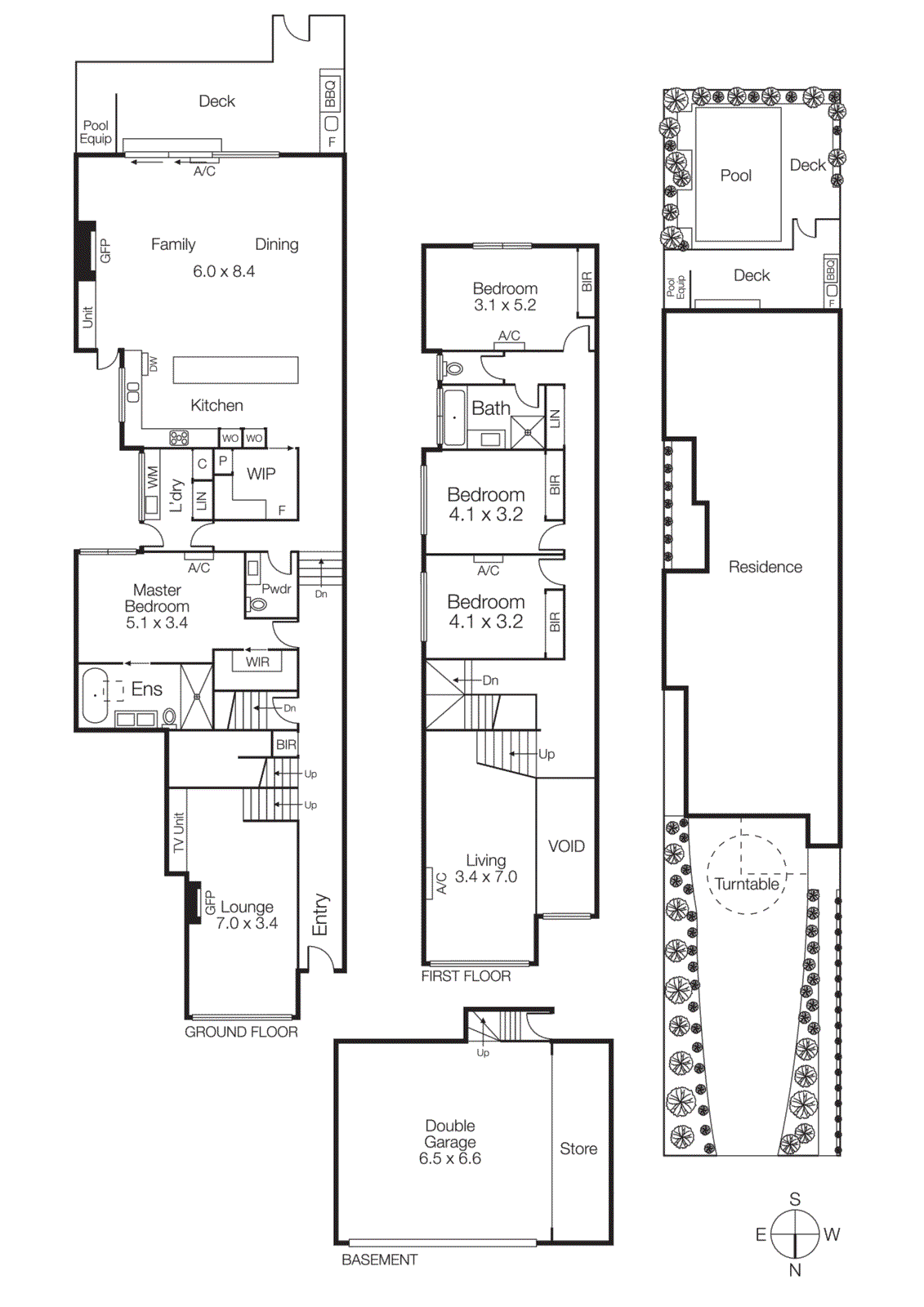
Nestled within a coveted pocket and surrounded by glorious established gardens with pool, every spectacular interior dimension reflects the finest contemporary design and luxury.
The dramatic double height reception hall lined with gleaming spotted gum timber floors amplifies the sense of space and conveys a lavish contemporary elegance which is continued throughout this incredible home.
Floor-to-ceiling windows draw both natural light and greenery into all three fabulous living zones including the elegant sitting room / home office with gas fireplace and integrated cabinetry, the glorious light-filled retreat sitting within the tree-tops, and the expansive open-plan living and dining domain with pebble gas fireplace.
Thoughtfully designed to provide a seamless connection from indoors to out, fully retracting stackers open to the private sun-drenched outdoor zone with picturesque solar heated pool and vast covered entertainment deck featuring fully integrated marble-topped BBQ kitchen, set in leafy garden surrounds.
The exquisite kitchen is beautiful to look at and superior in function. Stunning stone benchtops harmonize with glossy cupboards, butler’s pantry, huge breakfast island, and a suite of Miele appliances including gas cooktop, double ovens, and integrated dishwasher for effortless entertaining and refined daily living.
Family accommodation includes a ground floor master bedroom with walk in robe and sumptuous twin-vanity ensuite featuring a gorgeous freestanding spa bath; while upstairs three additional bedrooms with robes share a luxurious family bathroom and separate WC.
Family living at its best, this outstanding sanctuary also includes security alarm, video intercom, keyless entry, split system air conditioners throughout, powder room, fitted laundry, ducted vacuum and internally accessed basement parking with car turntable.
A premier position, a gentle stroll to the beach, parklands, local schools, bus services, and great shopping and dining at Black Rock Village, plus zoning for Beaumaris Secondary College and Mentone Girls Secondary College further reinforces the desirability of this unbeatable location.
For more information about this superb home, please contact Mark Earle or Brydie Hamilton.
