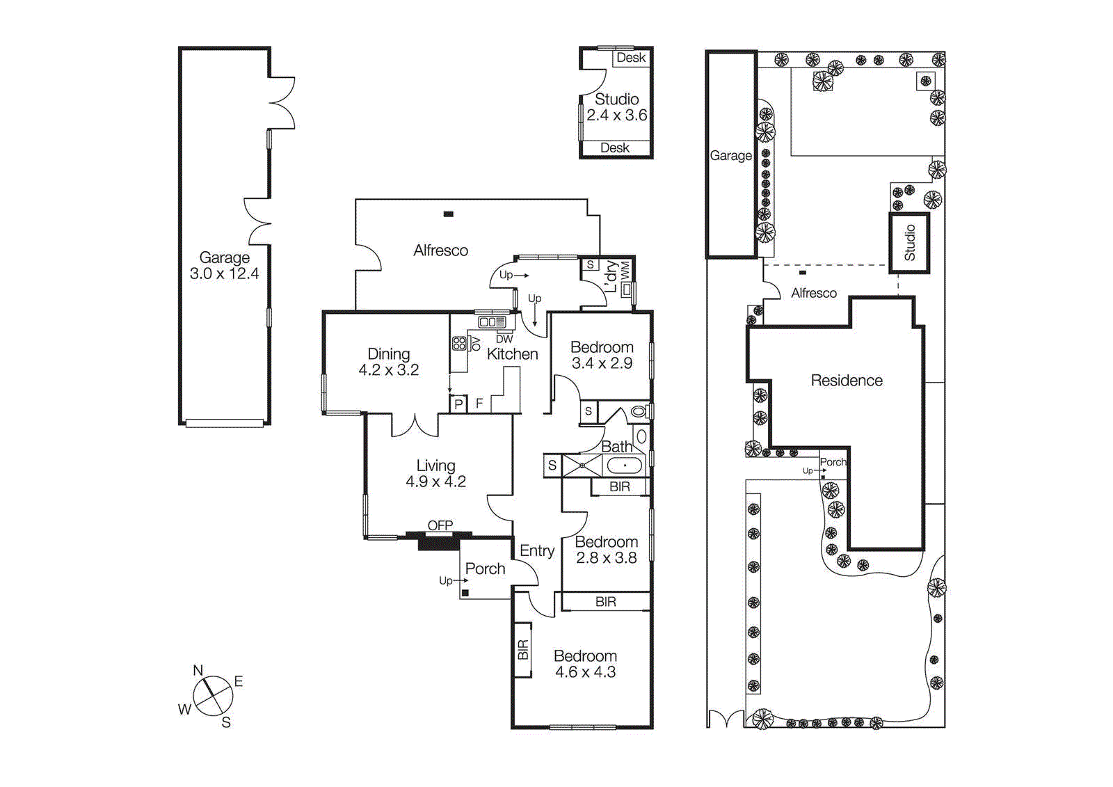
So much more than its charming three-bedroom proportions, this classic 1940’s brick home promises a number of exciting advantages both now AND in the future. Nestled in an old world garden on 612sqm, the current dimensions provide a completely comfortable family home full of impeccably preserved character elements such as high ceilings, original...
So much more than its charming three-bedroom proportions, this classic 1940’s brick home promises a number of exciting advantages both now AND in the future. Nestled in an old world garden on 612sqm, the current dimensions provide a completely comfortable family home full of impeccably preserved character elements such as high ceilings, original corner windows, textured walls and enchanting etched glass doors. Move straight in and immediately enjoy these surroundings with a renovated modern kitchen, secure rear garden, large garage/workshop and excellent OSP. As the need presents itself, consider renovating/extending into the prized northern rear garden, add a second story, maybe start again with a brand new luxury home or, as others nearby have done, a dual occupancy redevelopment project. (STCA). Whatever the future holds, the rich character proportions, generous parcel with preferred northern rear, address in the sought after Brighton Secondary College catchment and central amenities will support your chosen path. Existing accommodation includes a spacious lounge with gas heating, adjoining dining, renovated modern kitchen with timber benchtops, three spacious bedrooms, two with BIRs, spotless bathroom, functional laundry, outdoor entertaining patio, shed storage, tandem garage with workshop/storage and multi OSP. A great central position just a short walk from Hawthorn Road trams, buses, Princes Park and local strip shops with easy access to Ormond, Elsternwick and Brighton shops, dining and private schools.