Striking with its superior finishes and sensational outdoor entertaining, this designer ground floor apartment exudes a level of quality and style that rivals all others.
A neutral colour scheme and brilliant natural light enhance an open- plan environment, where a streamlined kitchen boasting stone surfaces and stainless steel appliances...
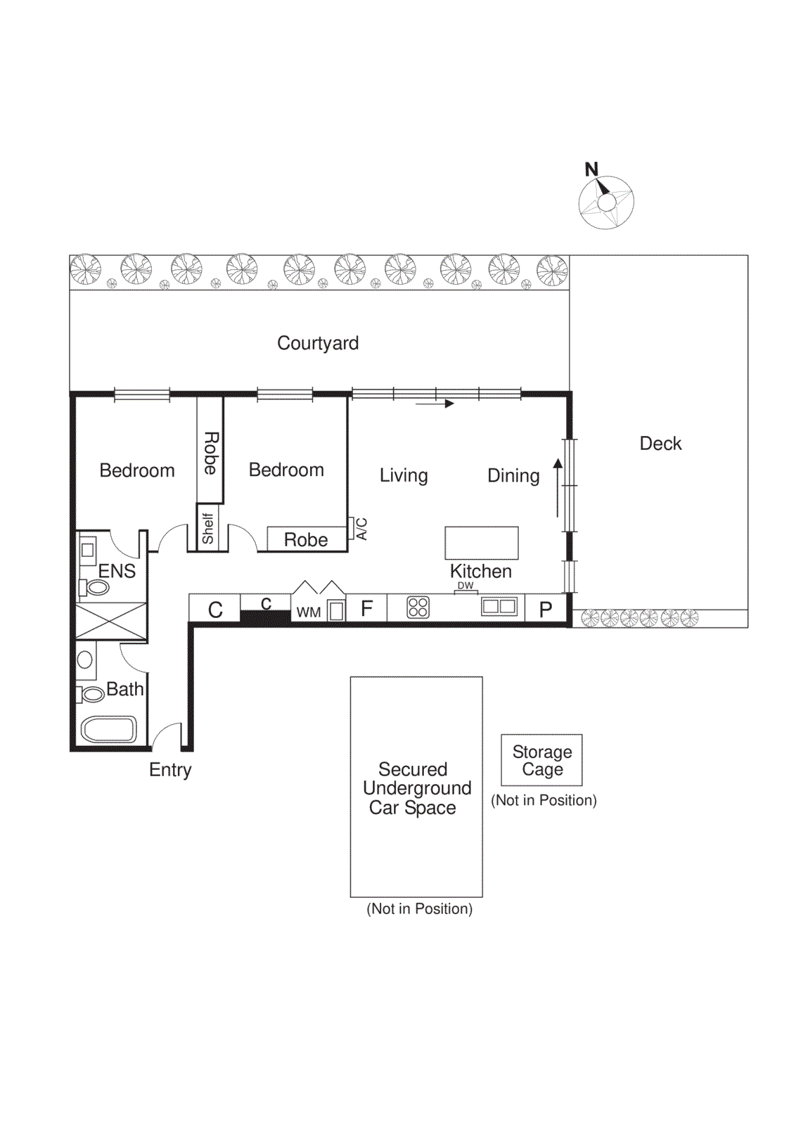
Striking with its superior finishes and sensational outdoor entertaining, this designer ground floor apartment exudes a level of quality and style that rivals all others.
A neutral colour scheme and brilliant natural light enhance an open- plan environment, where a streamlined kitchen boasting stone surfaces and stainless steel appliances creates a stylish focal point.
Unfolding outdoors, a large private courtyard wraps around to a huge deck (this size seldom found in apartments), the ultimate setting for private relaxation or entertaining.
2 robed bedrooms including a main bedroom with sleek ensuite, are enhanced by a chic bathroom, split system heating/AC, secure intercom entry, basement car space and storage cage.
Downsizers, investors and market entrants will appreciate the prime location within the Valkstone Primary school zone, a heartbeat to GESAC, Centre Road’s shopping, dining and retail precinct, Bailey Reserve and bus services.
ALL ENQUIRIES MUST INCLUDE A CONTACT NUMBER.