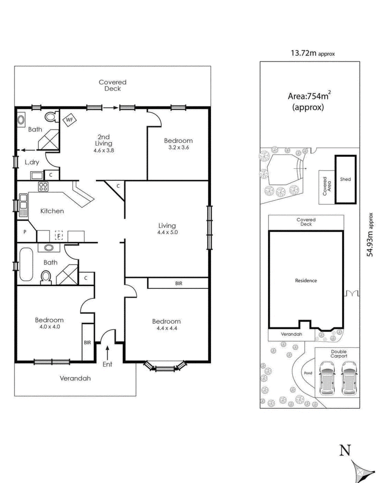
Perfectly private behind a high bluestone wall, this delightful three bedroom, two bathroom Californian bungalow, sitting on a substantial 754sqm approx. north-facing allotment offers a world of opportunities, in this prized family lifestyle precinct.
Lush gardens bestow the residence with immeasurable appeal, while its perfect placement among...
Perfectly private behind a high bluestone wall, this delightful three bedroom, two bathroom Californian bungalow, sitting on a substantial 754sqm approx. north-facing allotment offers a world of opportunities, in this prized family lifestyle precinct.
Lush gardens bestow the residence with immeasurable appeal, while its perfect placement among excellent schools, transport, and shopping ensures family success as well as future potential.
An idyllic lifestyle opportunity for families of all ages, this light-filled home offers a flawless combination of period grace tastefully mingled with modern amenity resulting in unquestionably enchanting ambience and a sense of beautiful seclusion across a spacious single-level interior.
Beyond the stained glass entrance, high ceilings and gleaming Baltic Pine floors flow past a generous living room, well-appointed timber kitchen with quality stainless steel appliances, breakfast bar, and plentiful storage, before arriving at the sun-soaked dining room.
Here, sliding doors connect to a secluded outdoor setting revealing full-width veranda, lush lawns, and paved entertaining for tranquil and relaxed alfresco living and dining.
Relish outstanding family space from a three-bedroom layout, including two fitted bedrooms with ornate ceilings overlooking the leafy front gardens, a third robed bedroom at the rear, and two sparkling bathrooms (one with claw-footed bath).
Complete with separate laundry, ducted heating and cooling, ceiling fans, shed, double carport, and ample off street parking.
With so many exciting possibilities, enjoy the beauty within, extend up or out or renovate with flair, or develop the substantial site (subject to Council approval) and further capitalize on its first-class position enviably located strolling distance to Sandringham Village’s shops, cafes, boutiques, restaurants, and train station, parklands, and the beach, plus close proximity to Firbank Grammar’s ELC and Junior School, Sandringham College, Sacred Heart Catholic Primary School, and Sandringham Primary School. For more information about this Bungalow classic contact Richard Slade or Misty White at Buxton Sandringham.