INSPECTIONS TIMES ARE FOR PRIVATE APPOINTMENTS ONLY – Please contact Agent to register, no walk-ins available.
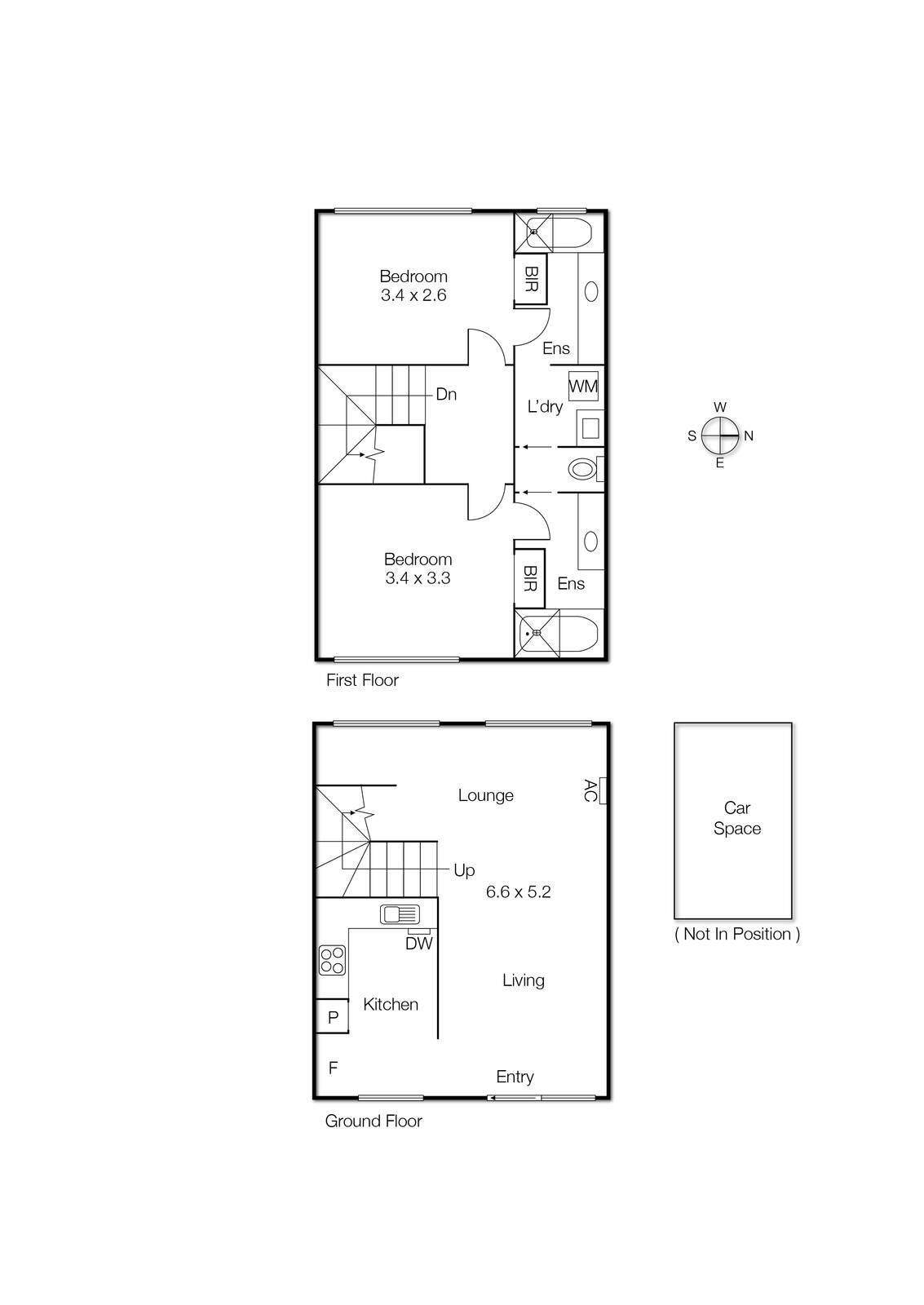
Showered in westerly light and treetop views amid a spacious, two-bedroom layout, this top-floor ‘City Gardens’ residence delivers a stylish, easy-care lifestyle amid trendy, city-fringe surrounds.
Opposite the picturesque Gardiner...
INSPECTIONS TIMES ARE FOR PRIVATE APPOINTMENTS ONLY – Please contact Agent to register, no walk-ins available.
Showered in westerly light and treetop views amid a spacious, two-bedroom layout, this top-floor ‘City Gardens’ residence delivers a stylish, easy-care lifestyle amid trendy, city-fringe surrounds.
Opposite the picturesque Gardiner Reserve, the home balances leisure and convenience, enjoying city bound transport and close to Royal Park’s sweeping parklands, Errol Street’s lively eateries and nightlife, Victoria Market’s fresh food, and the CBD’s endless entertainment.
A bold sliding glass entry frames the desirable open-plan living, dining and contemporary stainless kitchen with gas cooking and dishwasher. The upper level is reserved for two spacious bedrooms both with renovated ensuites, built-in-robes and a separate laundry.
Additional highlights include secure undercover parking, outdoor area at the entry, powerful 7KW split system servicing downstairs and ceiling fans in both bedrooms and dining zone.'
Close proximity to the University and Hospital precincts and with the completion of the Metro Tunnel and the new Arden Train Station by 2025 the Station will be only 500 metres away. The new Arden Precinct development will become a new destination for Melbourne and an employment hub on the doorstep of Melbourne’s central city.
ALL ENQUIRIES MUST INCLUDE A CONTACT NUMBER