INSPECTIONS BY PRIVATE APPOINTMENT ONLY - Please contact the Agent to arrange a suitable time.
Sun-filled, single level and beautifully spacious, this 3-bedroom townhouse’s appealing environs are perfectly matched by a quiet cul de sac position within a short stroll of Bay Street’s best shops and restaurants, convenient train and bus network,...
INSPECTIONS BY PRIVATE APPOINTMENT ONLY - Please contact the Agent to arrange a suitable time.
Sun-filled, single level and beautifully spacious, this 3-bedroom townhouse’s appealing environs are perfectly matched by a quiet cul de sac position within a short stroll of Bay Street’s best shops and restaurants, convenient train and bus network, and of course, the Brighton Bay cinema. Travel a few minutes further afield and enjoy Church and Martin Streets as well as Brighton’s popular beachfront - this superior locale is all about lifestyle.
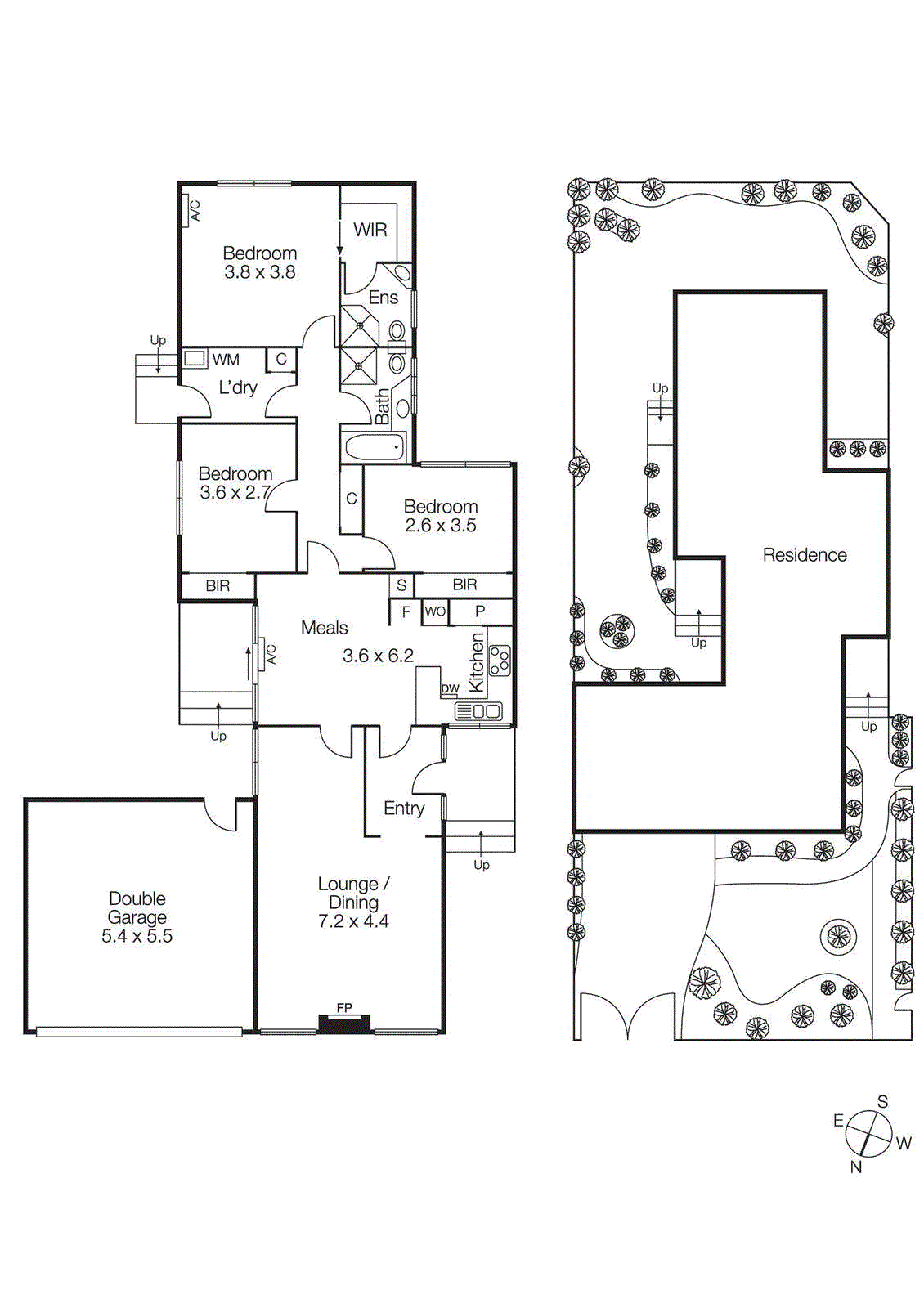
Impeccably presented proportions and gorgeous garden spaces offer peace and privacy for young families or empty nesters. The front one of only 2 with a delightful, north facing street presence, this home provides inviting living and dining zones warmed by northerly light and a cosy open fireplace. A well-appointed modern kitchen with gas cooking and dishwasher adjoins a bright meals area, sunny breakfast terrace and landscaped rear garden ideal for al fresco entertaining.
The master suite boasts a walk-in robe and en suite, while a central bathroom services two further bedrooms, both with built-in robes. Comfortable as is, featuring ducted heating and vacuum, air conditioning, intercom entry, timber flooring, remote double garage with rear garden access and gated off street parking, or add your own touches and further value in the heart of blue chip Brighton.
For more information about this superbly located town residence please contact Gary Yue at Buxton Brighton on 0468 338 785.