One of just four hidden behind the dynamic retail streetscape, this two story apartments clever design is completely in sync with a modern inner city lifestyle. Set securely at the rear, its downstairs open study and courtyard offer a perfect work-from-home zone whilst above, large light filled living areas and two generous bedrooms form a peaceful...
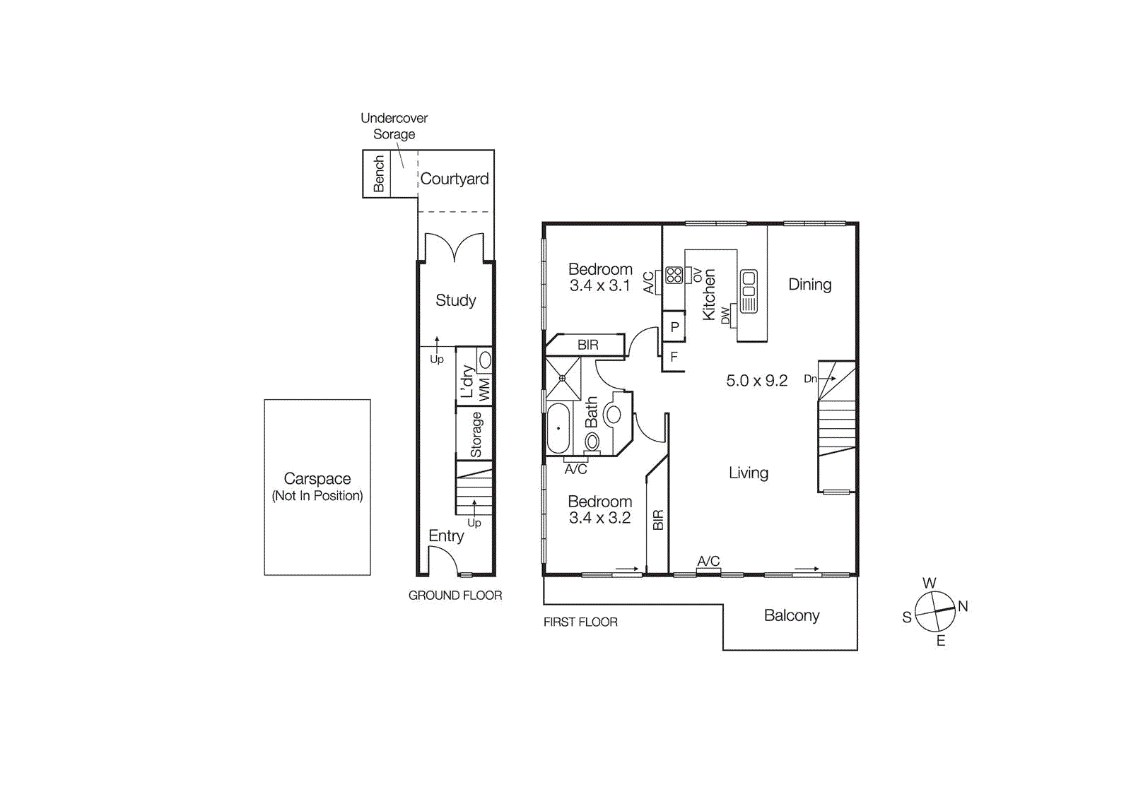
One of just four hidden behind the dynamic retail streetscape, this two story apartments clever design is completely in sync with a modern inner city lifestyle. Set securely at the rear, its downstairs open study and courtyard offer a perfect work-from-home zone whilst above, large light filled living areas and two generous bedrooms form a peaceful private retreat close to every amenity. Soaring architectural ceilings accentuate the sense of space enjoyed by large open plan living areas, their statement gourmet kitchen featuring Miele appliances, stone benchtops and excellent storage and an alfresco deck destined to be the perfect setting for your sunny morning cuppa or pre dinner drinks. In their own domain, two generous bedrooms offer extensive BIR’s/storage, the main with deck access, configured with a family sized central bathroom. Sunset horizon views, Euro laundry, reverse cycle heating/cooling, excellent storage, polished timber floors, intercom security, alarm and secure undercover parking complete an ideal lock up and leave home with local cafes, shops and trams at the doorstep. Short walk to iconic Elsternwick shopping, leafy Hopetoun Gardens, easy access to Elsternwick Train Station via the tram or walk and just a quick drive to Elwood Beach.