INSPECTION BY APPOINTMENT ONLY, PLEASE CONTACT AGENT.
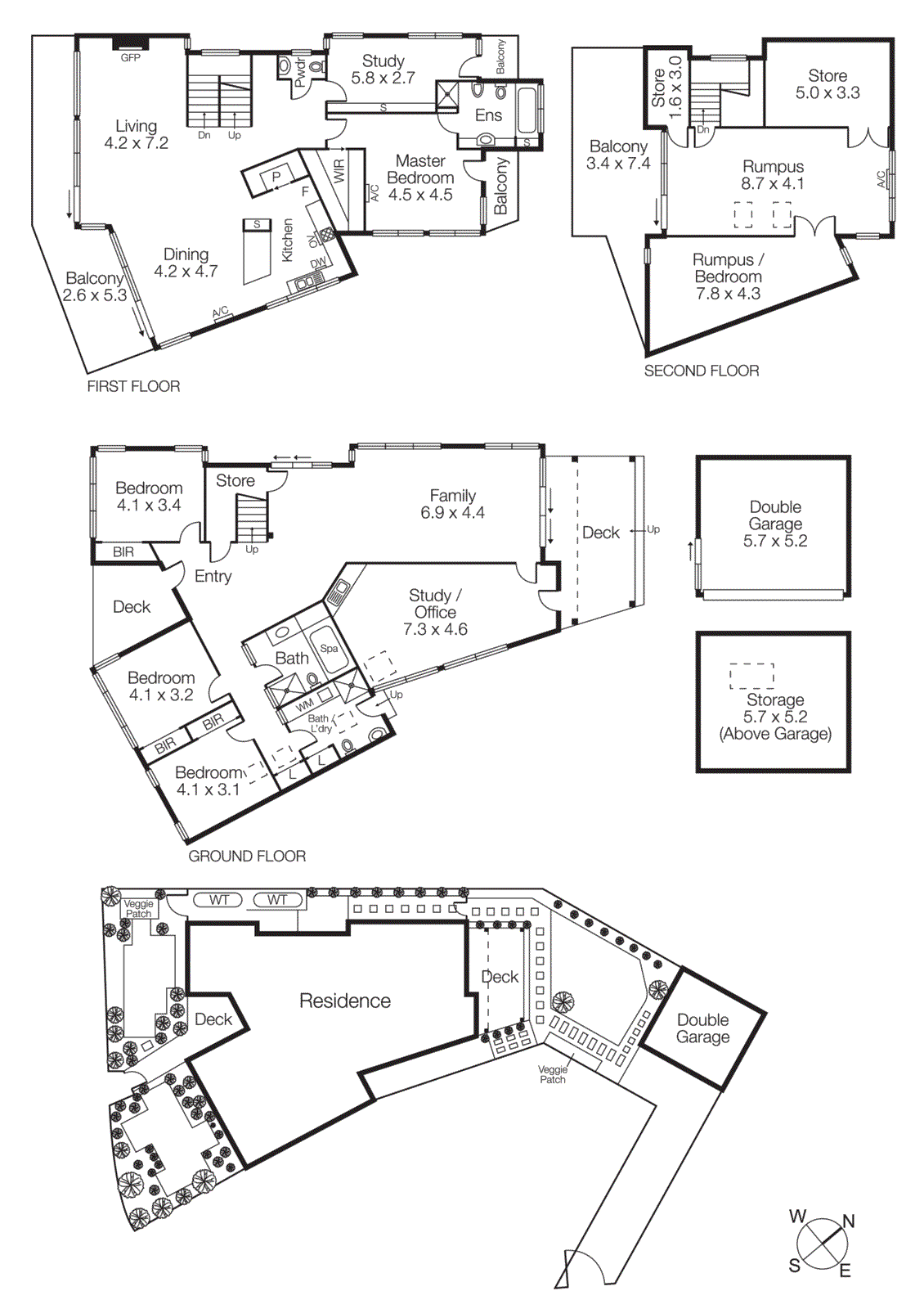
Endless light, abundant space and a panoramic perspective come together in this landmark beachfront home. High on the sweep above Black Rock beach and just steps from iconic Half Moon Bay, this expertly designed 5-bed, 3.5-bath home rises over 3 storeys to provide multi-balconied,...
INSPECTION BY APPOINTMENT ONLY, PLEASE CONTACT AGENT.
Endless light, abundant space and a panoramic perspective come together in this landmark beachfront home. High on the sweep above Black Rock beach and just steps from iconic Half Moon Bay, this expertly designed 5-bed, 3.5-bath home rises over 3 storeys to provide multi-balconied, multi-functional spaces with sweeping bay panoramas. Just a short stroll to Black Rock Village and boasting 180° views across the bay to Indented Head, this is breathtaking beachfront living at its finest.
Step in from cool coastal gardens to find a dedicated children’s level with a vast family zone flowing to sheltered decking alongside a flexible studio or home office with separate entry. Step up to balcony-wrapped living-dining on a bay-view midlevel, and find perfect peace and privacy in an immense master-domain and library-sized home office. Then rise to unparalleled third-floor heights and find a living space to luxuriate in the view, and a place to dream in a flexible fifth bedroom.
Appointed to a demanding architectural specification with a glossy granite kitchen and sleek bathrooms (one with spa, one an immense ensuite), the home is elegantly detailed with textural timber floors, sculptural floating stairs and enviable extras including reverse-cycle air-conditioning, ducted heating, a cosy gas fire and video-intercom. With an abundance of storage including a walk-in robe, walk-in pantry and vast attic areas, there’s even ample car accommodation with an auto-gated double garage conveniently accessible via Arkaringa Cres.
For more information about this architectural beachfront home contact Mark Earle or Brydie Hamilton at Buxton Sandringham.