Located in a well-maintained estate in the heart of Braeside’s industrial precinct, is this opportunity for investors and future owner-occupiers. Tenanted by a privately operated high-end confectionery outlet, this building is clean, modern, and offers attractive features including:
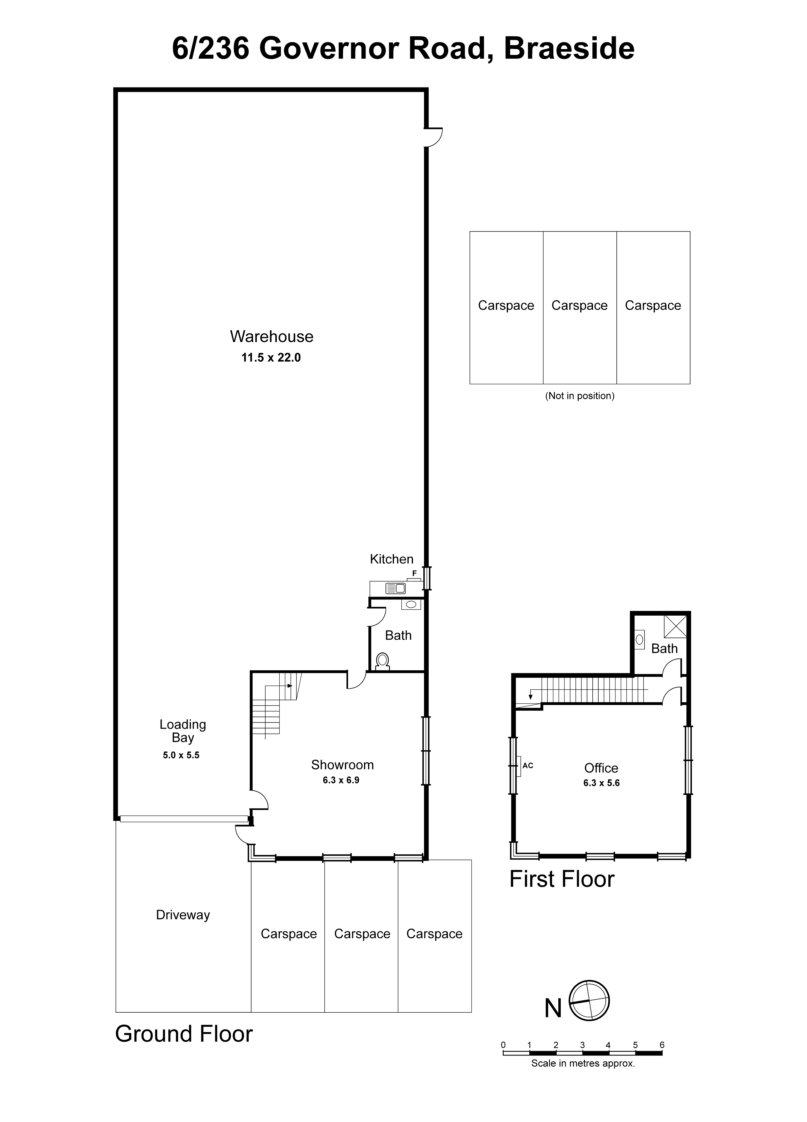
• 390m2 * total floor area
• 282m2* clear span...
Located in a well-maintained estate in the heart of Braeside’s industrial precinct, is this opportunity for investors and future owner-occupiers. Tenanted by a privately operated high-end confectionery outlet, this building is clean, modern, and offers attractive features including:
• 390m2 * total floor area
• 282m2* clear span warehouse
• 96m2* office/showroom over 2 levels plus amenities
• Nominal warehouse height 7.4-8.0 metres*
• 3 phase power
• Container height electric roller door
• Airconditioned 1st floor office with shower
• Kitchenette and disabled access amenities
• 6 car spaces
• Extensive (40) solar roof panels
• 3 year lease term from 01/07/2020 plus further 3 year option
• Net rent $47,682 from 01/11/2021 plus 3% annual increases
Just minutes to the new Mordialloc Freeway access ramps connecting to Mornington Freeway and Dingley Bypass. This highly active precinct hosts neighbours including Blue Scope Steel, AWM, and National Storage.
CALL TO INSPECT NOW!