This fabulous three-bedroom home in South Kingsville is the perfect step-up for your family, in a location that offers the very best in lifestyle and convenience. With two living areas and a large...
This fabulous three-bedroom home in South Kingsville is the perfect step-up for your family, in a location that offers the very best in lifestyle and convenience. With two living areas and a large outdoor space, this home will give your growing family room to move, and is cleverly designed to offer privacy, as well as beautiful communal spaces perfect for spending time together.
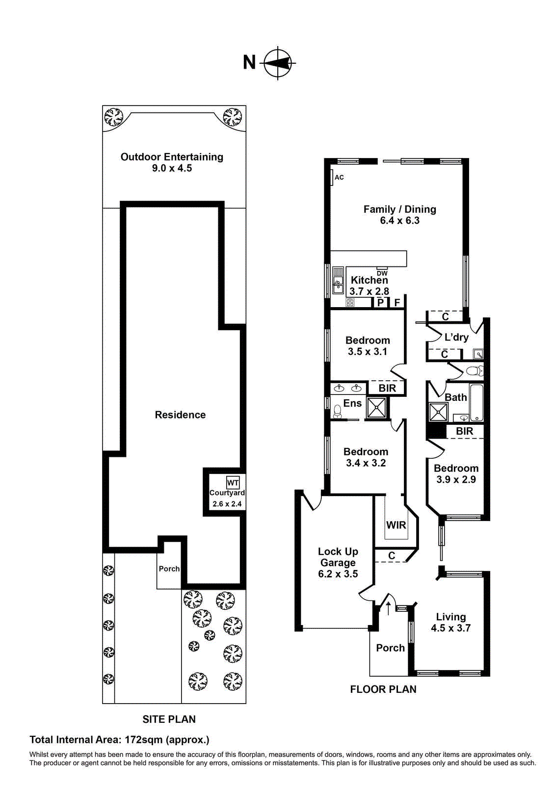
The huge open-plan kitchen/dining/living area is the heart and soul of this amazing home, with access to a large outdoor entertaining area. The stylish, well-equipped kitchen has loads of storage, timber benchtops, stainless steel appliances and dishwasher. The dining area has plenty of space for a large family dining table, and the spacious living area features access to the entertaining deck. The master bedroom boasts a walk-in robe, ceiling fan and twin vanity ensuite. Both generous bedrooms feature ceiling fans and built-in robes. The family bathroom, with separate shower, bath, large storage cupboard with separate WC. A separate laundry, ceiling fans throughout, split-system, ducted heating, and lock-up garage add to the comfort and convenience of this perfect family home.
Walk to Newport Lakes to discover the lake and its beautiful surrounds, take the kids to Edwards Reserve oval and playground just around the corner, or treat yourself to a coffee at Little Gecko Coffee Roasters or Blacksheep, all within easy walking distance from home. Close to Spotswood’s buzzing Hudson’s Road, Altona Gate Shopping Centre, and Newport’s beautiful village, this home’s location puts you and your family in the heart of the inner-west, while still providing that quiet community feel. Perfect for families and investors alike, this is one not to be missed!
Features:
• Three spacious bedrooms
• Master bedroom with ensuite and walk-in robe
• Built-in robes in bedrooms 2 and 3
• Huge open-plan kitchen/dining/family area
• 2.7m ceilings
• Second living area
• Generous family bathroom with separate shower and bath
• Separate laundry
• Ducted heating
• Solar electricity
• Split systems in living area
• Ceiling fans throughout
• Tasmanian Oak floors
• Lock-up garage
• Close to parks, cafes, shopping and schools
• Quiet street with easy freeway access
• Close to public transport
• Zoned to Wembley Primary School
• 8.5km to CBD
