Set behind a delightful facade, this idyllic 2 bedroom home delivers generously proportioned, sun-drenched dimensions in a vibrant pocket just moments to Cheltenham Village.
Offering a flexible layout, this secluded sanctuary will appeal to small families, downsizers, and discerning buyers wanting a secure, low-maintenance home with brilliant...
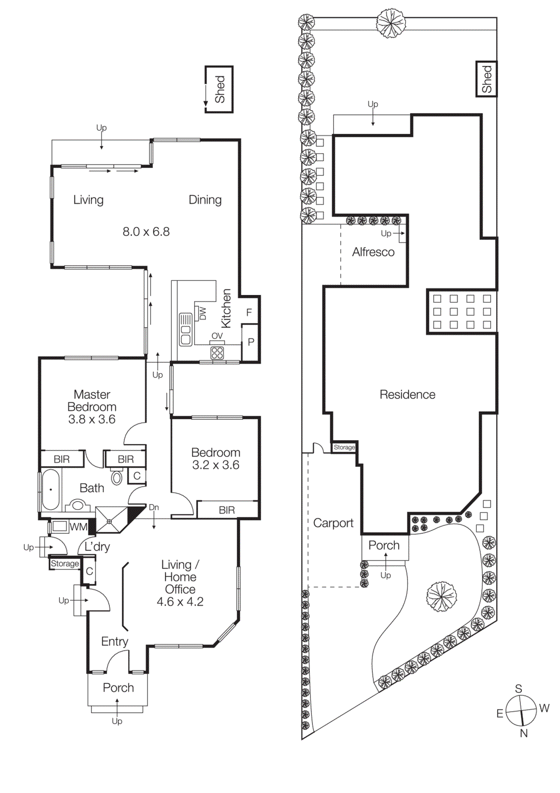
Set behind a delightful facade, this idyllic 2 bedroom home delivers generously proportioned, sun-drenched dimensions in a vibrant pocket just moments to Cheltenham Village.
Offering a flexible layout, this secluded sanctuary will appeal to small families, downsizers, and discerning buyers wanting a secure, low-maintenance home with brilliant lifestyle appeal.
A wide entrance hall opens to the spacious living room/ home office, while further down the hall two robed bedrooms enjoy central courtyard vistas. The master bedroom has direct access to a sparkling two-way bathroom featuring separate bath and shower.
Flooded with natural light, the generous open-plan living and dining area opens through sliding doors to two alfresco entertainment courtyards set in entirely private leafy surrounds.
The granite-topped kitchen with quality stainless steel appliances overlooks the central courtyard and family living zone.
Complemented by polished floorboards, separate laundry, ducted heating and evaporative cooling, ceiling fans in the bedrooms, and single carport with storage room.
Enjoy everything that this location has to offer within short walking distance to cafes, train & bus services, parklands, Golf courses, Cheltenham Primary School and Southland Shopping Centre. For more information about this peaceful haven contact Richard Slade or Misty White at Buxton Sandringham.