Embraced by three-sides of garden with irresistible street appeal, this spacious, 2-bedroom home is brimming with scope to luxuriously upgrade. Whether you are seeking a charming family up-size or scaling down to one level, ‘Canterbury’ is the perfect place to make your own. Add value with an easy update or go all out to create something truly...
Embraced by three-sides of garden with irresistible street appeal, this spacious, 2-bedroom home is brimming with scope to luxuriously upgrade. Whether you are seeking a charming family up-size or scaling down to one level, ‘Canterbury’ is the perfect place to make your own. Add value with an easy update or go all out to create something truly special, either way the rewards will be outstanding.
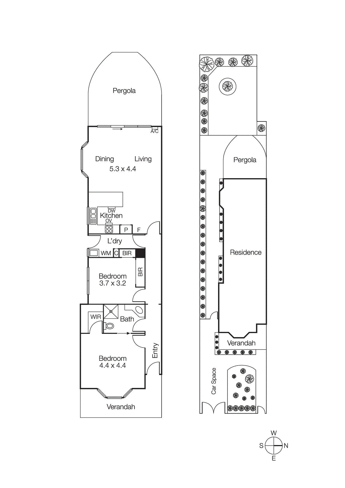
Picket fencing, standard roses and a lace-framed veranda welcome you home to a traditional layout with a long, arched hallway and bedrooms zoned to the front. The main suite is graced with a gorgeous bay window, walk-in robe and two-way en suite bathroom. The second bedroom is also well-sized, boasting two banks of wardrobing and picture windows.
The heart of this Victorian inspired beauty is a generously proportioned kitchen, dining and living domain. Classically appointed with quality Smeg appliances (gas cooktop and Dishlex dishwasher), the open plan kitchen features a breakfast bar and timber cabinets. A delightful meals area is enhanced by atrium style windows, while the lounge spills out to paved entertaining in broad gardens aglow with north-westerly sun.
Ducted heating throughout, reverse cycle air conditioning, laundry with outdoor access and gated driveway parking for 2-cars. This single level semi offers immediate comfort with potential to shine in a premium Dendy Park pocket. Also in close proximity to Brighton Golf Course, prestigious South Road schools, shopping and dining strips including Hampton Street, Were Street & Church Street and the beach.
For more information about this captivating renovation opportunity to shine please contact Stefan Whiting at Buxton Brighton on 0411 473 153.