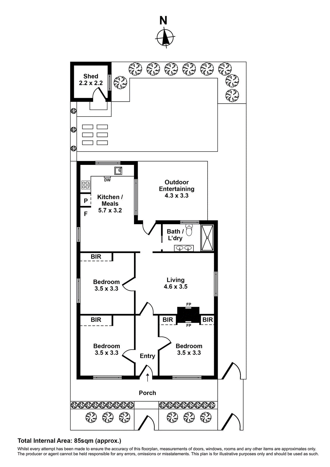
With a picture-perfect weatherboard façade sitting proudly behind its picket fence and manicured front garden, this beautifully updated three-bedroom period home is perfectly positioned in a prime inner-west location, within walking distance to the coveted Seddon Village.
The open-plan kitchen and dining space at the rear of the home overlooks the...
With a picture-perfect weatherboard façade sitting proudly behind its picket fence and manicured front garden, this beautifully updated three-bedroom period home is perfectly positioned in a prime inner-west location, within walking distance to the coveted Seddon Village.
The open-plan kitchen and dining space at the rear of the home overlooks the landscaped back garden featuring a heated undercover patio, perfect for family enjoyment. The well-equipped kitchen fitted with German stainless steel appliances and generous storage.
The living room boasts a working feature fireplace and period features – the perfect place for cosy nights in. The master bedroom enjoys custom-fitted built-in robes and working fireplace while the second and third bedrooms have freestanding wardrobes for easy storage. The bedrooms all are serviced by the spacious modern bathroom, with a double walk-in rainfall shower, and double vanity.
Central heating and evaporative cooling throughout ensure year-round comfort, and with beautiful Baltic pine floorboards throughout, laundry facilities incorporated into the bathroom, and wide side access between the front and back gardens, this home provides every convenience for family life.
Within walking distance to absolutely everything, this home will have tonnes of appeal for families and clever investors alike. This home is not to be missed.
Features:
• Beautiful period home on 215sqm
• Three bedrooms with storage
• Modern kitchen with Bosch dishwasher and garden views
• Spacious living room with working fireplace
• Modern bathroom with walk-in double rainfall shower and double vanity
• Laundry incorporated into bathroom
• Central heating and evaporative cooling throughout
• Working fireplaces
• Period features retained
• Original Baltic pine floorboards
• Undercover outdoor entertaining space with heat panels
• Storage shed
• Wide side access between front and back gardens
• Fabulous Seddon location close to schools, shops and parks
• Family-friendly community
• Walking distance to Bristow Reserve and playground
• Walking distance to train stations
• Zoned to Footscray City Primary School and Footscray High School
• Only 6.8 km (approx.) from CBD