* You MUST register for an inspection and we ask that you also confirm your attendance.
AN AGENT WILL NOT BE PRESENT IF YOU DO NOT REGISTER and CONFIRM. Your consideration and co-operation is appreciated.
Inspired architectural design has created this brand new 3 bedroom plus study home of lifestyle proportions. With a distinctive design and...
* You MUST register for an inspection and we ask that you also confirm your attendance.
AN AGENT WILL NOT BE PRESENT IF YOU DO NOT REGISTER and CONFIRM. Your consideration and co-operation is appreciated.
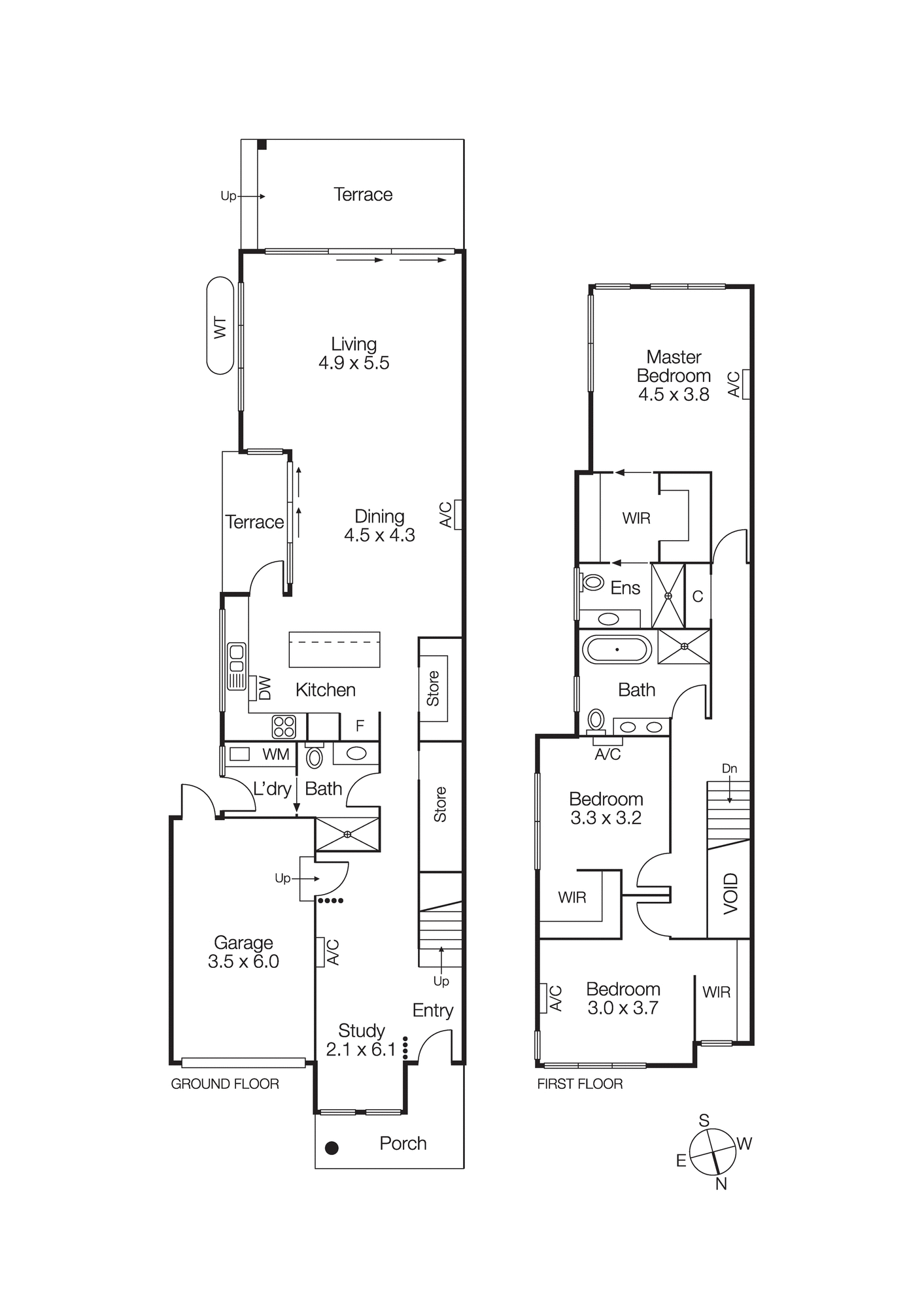
Inspired architectural design has created this brand new 3 bedroom plus study home of lifestyle proportions. With a distinctive design and luxurious finish, this townhouse residence offers easy-care lifestyle living at it’s best. The open-plan living/dining space is complimented by a striking kitchen boasting premium range marble benches, island bench, plenty of storage space, and dishwasher. Quality living flows outside through sliding doors to a well-proportioned private entertainer’s deck or sun lounge space plus an additional courtyard positioned off the dining room. Be welcomed by a mix of landscaped and established gardens at the front and low maintenance garden at the rear.
Upstairs comprises main bedroom with luxe en-suite, and WIR. A stand out contemporary bath in the central bathroom invites you to unwind in comfort and style. Two additional bedrooms both also feature WIR’s. Additional features include split system heating and cooling throughout property, remote lock up garage, under stair storage, water tank and security alarm.
Located close to Coatesville primary school, Bentleigh and Mckinnon secondary schools, GESAC, the Links shopping centre and Centre Road shops, supermarkets and cafes. Be the first to live in this immaculate, well-located residence.