Please contact Alejandro Torres on 0435 266 132 to arrange an inspection
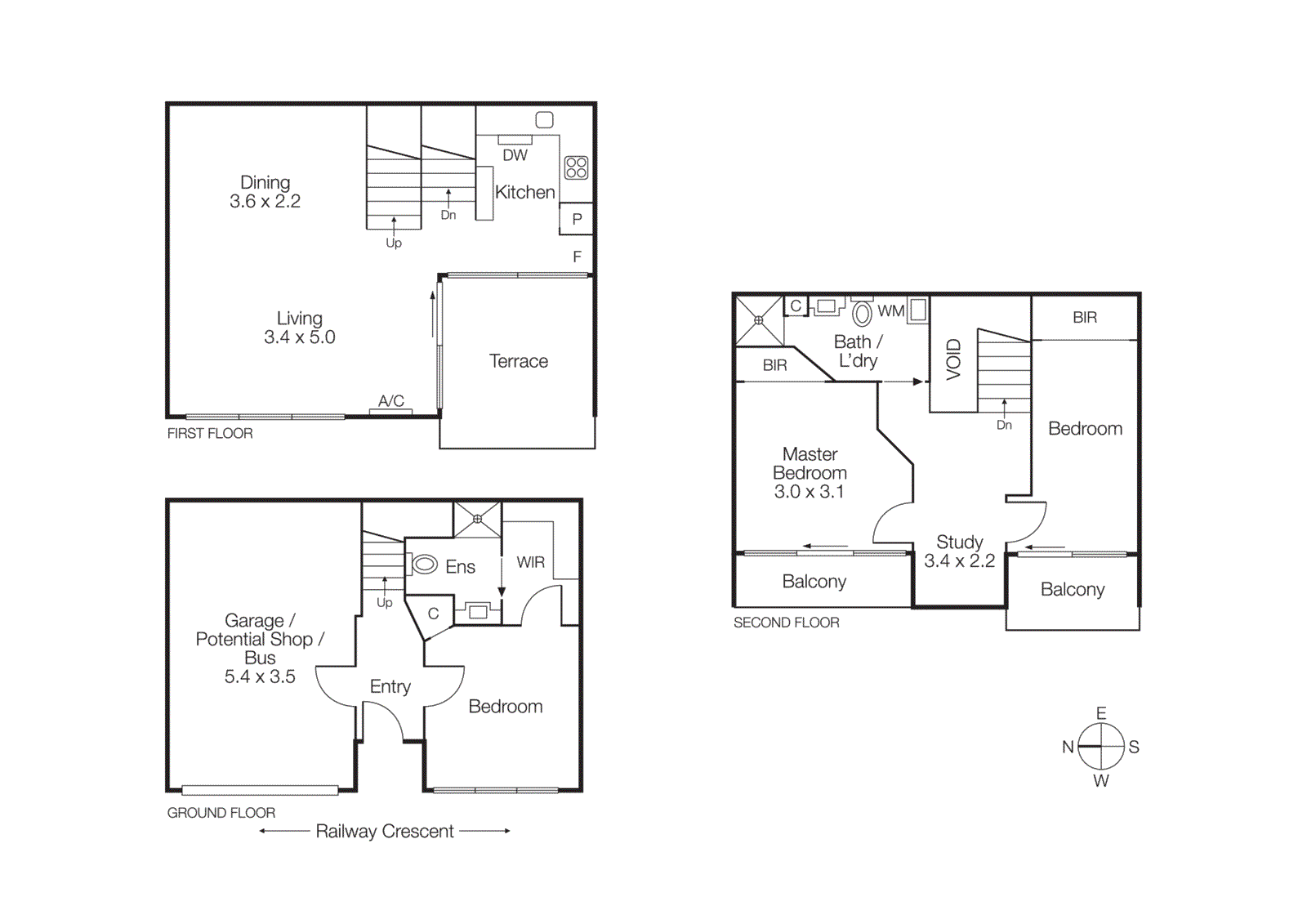
Not just an effortless lock up and leave residence in a convenient location, this townhouse’s CZ1 zoning adds a range of commercial possibilities to its three-bedroom two-bathroom accommodation just footsteps from Patterson Street Village.
Set on its own Title with the...
Please contact Alejandro Torres on 0435 266 132 to arrange an inspection
Not just an effortless lock up and leave residence in a convenient location, this townhouse’s CZ1 zoning adds a range of commercial possibilities to its three-bedroom two-bathroom accommodation just footsteps from Patterson Street Village.
Set on its own Title with the independence of its own street entry and street front remote garage, spacious proportions unfold over three light filled levels with top floor CBD views in the highly prized Brighton Secondary College zone.
First floor living and dining areas are served by a fully equipped stone kitchen and undercover terrace whilst three bedrooms are arranged as a ground floor main with WIR/ensuite and two on the top floor featuring BIRs and balconies with central bathroom and open study. Ideal as a family entry into this prized school precinct, perfect for busy couples or work from home professionals, wonderfully flexible for a home-based business that utilizes the ground floor and garage as office/ commercial premises.
Other highlights include split heating/cooling, parquetry floors, sun blinds, video intercom and secure porch entry plus internally accessed remote garage. Walk to Patterson Station, local shops and cafes, and off-leash Halley Park with minutes to both Centre and South Road shops, Southland, Holmesglen TAFE, zoned Bentleigh West Primary and the Bay.