Ideally situated on just over 5 acres in brilliant Nintingbool location is this newly updated family home with outstanding shedding and an abundance of space. Approx. 7 minutes to the Delacombe Town Centre, Bunnings, and Day care centres.
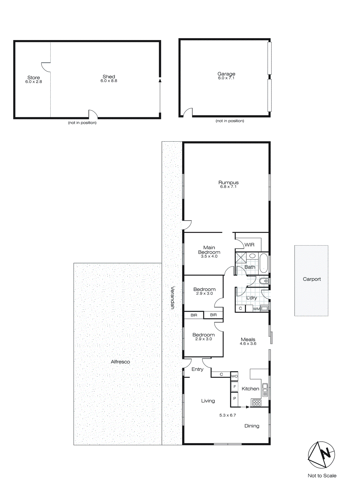
The home consists of 3 bedrooms, master with WIR and remaining two bedrooms with BIR’s. Open plan kitchen...
Ideally situated on just over 5 acres in brilliant Nintingbool location is this newly updated family home with outstanding shedding and an abundance of space. Approx. 7 minutes to the Delacombe Town Centre, Bunnings, and Day care centres.
The home consists of 3 bedrooms, master with WIR and remaining two bedrooms with BIR’s. Open plan kitchen meals area flowing through to formal dining and lounge with a free-standing wood combustion fire to give an all-year-round warmth.
One of the many features of this home is the large rumpus room adjacent to the master bedroom. Outside and you will find 3 fenced paddocks ideal for horses, sheep or a couple cows, adding a large dog yard + chicken coup. A double lock up garage and carport take care of your parking needs with additional, 12 x 6m (approx.) shed with concrete, power and workspace.
A huge pergola is the perfect spot for entertaining with family and friends overlooking the rear yard and paddocks, that would also suit the horse enthusiast or those looking for a little hobby farm. This is the complete package only approx. 20 minutes from Ballarat CBD. Homes this close to major amenities with brilliant shedding & acreage are highly sought after, so why wait – call us today to arrange your very own private inspection.