*INSPECT VIA PRIVATE APPOINTMENT PLEASE CONTACT AGENT TO BOOK INSPECTION*
Rich with history, character and style, this impressive five-bedroom home offers family living on a grand scale. Brick veneer, lofty high ceilings, original wall panelling and parquetry flooring provide all the charm, as does the expansive shop-front windows that nod to the...
*INSPECT VIA PRIVATE APPOINTMENT PLEASE CONTACT AGENT TO BOOK INSPECTION*
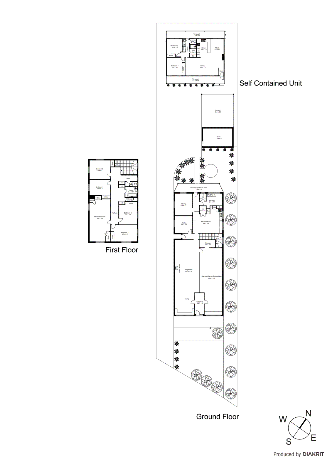
Rich with history, character and style, this impressive five-bedroom home offers family living on a grand scale. Brick veneer, lofty high ceilings, original wall panelling and parquetry flooring provide all the charm, as does the expansive shop-front windows that nod to the homes former heritage as a toy store. Inside reveals a magnificent home awaiting your magical touch, with unique and incredible spaces offering fabulous flexibility as your family grows, where you’ll be wowed by the expansive living and dining room with wood heater, huge adjoining rumpus/games room, rear lounge room, immaculate central kitchen with meals (WIP) and home office. Five large bedrooms with robes reside upstairs, including an enormous main parents retreat, while an impeccable bathroom, shower room and separate powder room provide comfort. Outdoors, an inviting covered deck and glorious garden awaits, providing a peaceful haven to relax in the northern sunshine, plus ample car parking including a double carport and single garage. Adding to the appeal is a fully self-contained two bedroom transportable home providing additional family accommodation which makes this property a fantastic multi-generational proposition, along with 1400m2 of future development potential (STCA.) Situated opposite leafy parklands and sporting fields, walking distance to the Thames Promenade Shopping Strip and Chelsea Heights Primary school, plus with beautiful beaches, the train and freeways in easy reach – inspection is a must.