Brought to you by Vendor Marketing – Melbourne's most qualified vendor advocates – www.vendormarketing.com.au
Spread out in space, entertain in style and relish the lifestyle of absolute convenience provided by this fabulous family townhouse in a whisper quiet cul de sac surrounded by the best of the inner city. A super smart presence behind its...
Brought to you by Vendor Marketing – Melbourne's most qualified vendor advocates – www.vendormarketing.com.au
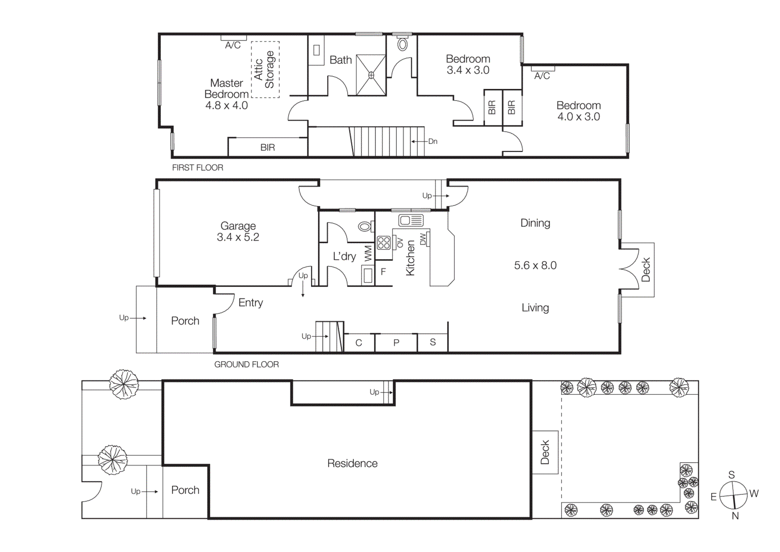
Spread out in space, entertain in style and relish the lifestyle of absolute convenience provided by this fabulous family townhouse in a whisper quiet cul de sac surrounded by the best of the inner city. A super smart presence behind its own independent street frontage, immaculate sun filled proportions provide a life of absolute peace and privacy, incredibly, just a short stroll from both Chapel and Carlisle Streets, schools, Alma Park, trams, trains and a host of other amenities. Elevated and set back, a glazed entry foyer allows natural light to stream through ground floor dimensions concluding in generous open plan living and dining areas that feature extensive built in storage, a clever bar with wine store and gas firebox. French doors connect to an equally impressive Palm Tree lined courtyard where lush landscaping and a sunset sky add a tropical feel to indoor/outdoor entertaining. Upstairs, three bedrooms with BIRs surround an impeccable bathroom with separate WC, one an ideal study, child or guest bedroom, the main a luxuriously proportioned domain with broad leafy outlooks. Other highlights include an open plan kitchen with gas appliances and dining bar, downstairs laundry with WC, elevated ceilings, polished hardwood floors, split heating/cooling, internally accessed remote garage plus OSP.