Federation Flair, Luxury & an Enviable Enclave Irresistibly inspired, this stunning timeless terrace captures the charm of its era while exceeding contemporary expectations within a rare street of...
Sharing Listing
B
2
b
1
228 m²
Buxton Inner West
79 Gamon Street,
Yarraville
3013
Federation Flair, Luxury & an Enviable Enclave Irresistibly inspired, this stunning timeless terrace captures the charm of its era while exceeding contemporary expectations within a rare street of...
Federation Flair, Luxury & an Enviable Enclave
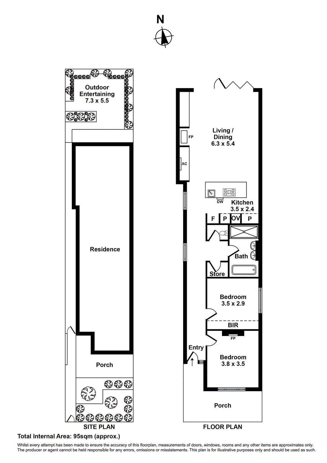
Irresistibly inspired, this stunning timeless terrace captures the charm of its era while exceeding contemporary expectations within a rare street of authentic period perfection. The pretty picket fence and ornate veranda lacework instantly beguile, while chic interiors luxuriously pamper with fine fitments and finishes that fuse Federation style with modern comforts.
An entertainer’s luxurious lifestyle begins with an exquisite Carrera marble island bench that makes a striking statement in style with its waterfall marble wrap complementing the high-end tone. The home chef will love the exceptional appliances and extensive floor to ceiling cabinetry boasting a library-style mobile access ladder, with generous open living and dining that flows seamlessly to ambient alfresco paved entertaining. Enjoy idyllic north facing warmth coupled with a cosy slow combustion fireplace and a wall of glass bi-fold doors that bathe the room in natural light while framing picturesque garden outlooks.
There’s two beautiful bedrooms, shared superior bathroom featuring Italian tiles and tapware, a freestanding claw-foot bath, full room-width shower with twin rain showerheads and twin pedestal sinks. Comforts include ducted heating, split system aircon, separate toilet and Euro laundry, front fireplace, honeyed timber flooring, landscaped gardens and rear laneway ROW. Enticing environs comprise Maribyrnong River walking and cycling trails, Footscray Park and playground, Footscray Market and shopping, train station, a choice of schools, Vic Uni, alluring Seddon, Yarraville and Williamstown attractions with a 20min CBD commute by train or 30min cycle.
Federation Flair, Luxury & an Enviable Enclave
Irresistibly inspired, this stunning timeless terrace captures the charm of its era while exceeding contemporary expectations within a rare street of authentic period perfection. The pretty picket fence and ornate veranda lacework instantly beguile, while chic interiors luxuriously pamper with fine...
Federation Flair, Luxury & an Enviable Enclave
Irresistibly inspired, this stunning timeless terrace captures the charm of its era while exceeding contemporary expectations within a rare street of authentic period perfection. The pretty picket fence and ornate veranda lacework instantly beguile, while chic interiors luxuriously pamper with fine fitments and finishes that fuse Federation style with modern comforts.
An entertainer’s luxurious lifestyle begins with an exquisite Carrera marble island bench that makes a striking statement in style with its waterfall marble wrap complementing the high-end tone. The home chef will love the exceptional appliances and extensive floor to ceiling cabinetry boasting a library-style mobile access ladder, with generous open living and dining that flows seamlessly to ambient alfresco paved entertaining. Enjoy idyllic north facing warmth coupled with a cosy slow combustion fireplace and a wall of glass bi-fold doors that bathe the room in natural light while framing picturesque garden outlooks.
There’s two beautiful bedrooms, shared superior bathroom featuring Italian tiles and tapware, a freestanding claw-foot bath, full room-width shower with twin rain showerheads and twin pedestal sinks. Comforts include ducted heating, split system aircon, separate toilet and Euro laundry, front fireplace, honeyed timber flooring, landscaped gardens and rear laneway ROW. Enticing environs comprise Maribyrnong River walking and cycling trails, Footscray Park and playground, Footscray Market and shopping, train station, a choice of schools, Vic Uni, alluring Seddon, Yarraville and Williamstown attractions with a 20min CBD commute by train or 30min cycle.
Buxton Inner West
79 Gamon Street,
Yarraville
3013
We'll give you a clear, honest assessment based on real market insights, so you can make informed decisions with confidence.
Local knowledge. Proven results. Trusted advice.
