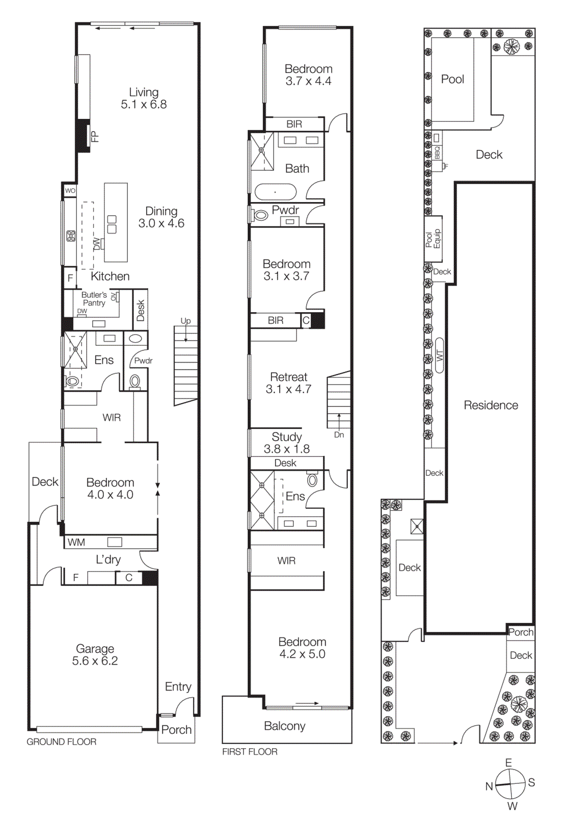
An offering of uncompromising space, style and quality, this incredibly appointed 4-bedroom residence has been expertly crafted to cater for all stages of family living boasting 428sqm/36sqs approx. with a large street frontage.
A model of modern sophistication with an emphasis on family functionality and luxury, the home features living areas on...
An offering of uncompromising space, style and quality, this incredibly appointed 4-bedroom residence has been expertly crafted to cater for all stages of family living boasting 428sqm/36sqs approx. with a large street frontage.
A model of modern sophistication with an emphasis on family functionality and luxury, the home features living areas on both levels – including a vast ground floor entertaining zone - a choice of master suite upstairs and down plus an enviable alfresco setting complete with outdoor kitchen and sparkling gas and solar heated pool.
At the heart of the home, the stunning epicurean kitchen is anchored by an exquisite waterfall-marble edge island and showcases premium appliances (integrated fridge/freezer) along with full butler’s pantry, whilst also offered are two dedicated study areas (one on each level), three beautifully appointed bathrooms, a guest powder room and impressive laundry with jaw-dropping amounts of storage, fine finishes and both rear and garage access.
With a host of inclusions only a visit will uncover, among the many highlights are zoned heating/cooling, gas fireplace, custom cabinetry, premium New Zealand wool carpets, engineered floors, steel spine feature staircase, Velux skylights, video intercom and auto front gates. Underfloor heating can be found in the ground floor bedroom, motorized blinds star in the upstairs master and double glazed windows feature throughout.
Supremely low maintenance with an abundance of space, the home is just moments to the bay, village, bus stops and leading schools.
For more information about this beautiful 4-bedroom residence, please contact Kylie Charlton or Richard Slade at Buxton Sandringham.