On a light filled corner in one of St Kilda’s most beautiful heritage lined streets, this magnificent Victorian c.1895 combines its stunning originality with extended modern function on an impressive 336sqm with deep northern rear garden. Set behind its original courtyard entry and exquisite iron lacework façade, illustrious original dimensions...
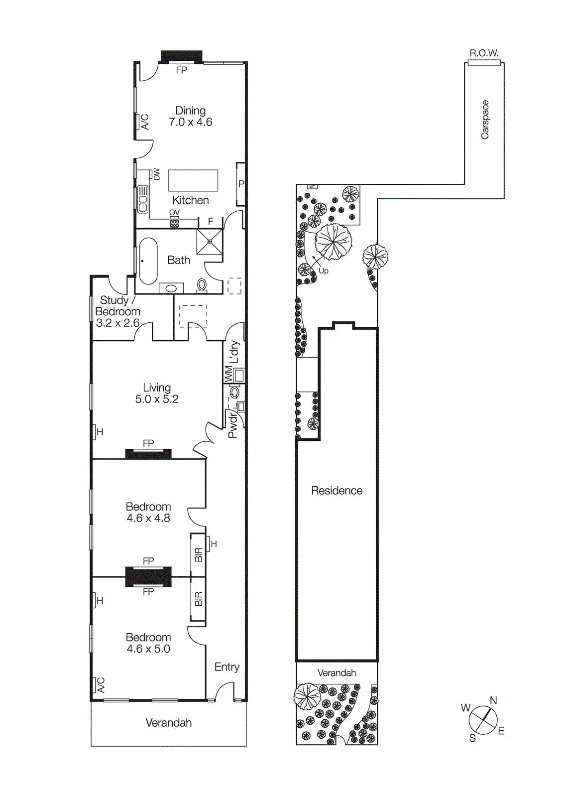
On a light filled corner in one of St Kilda’s most beautiful heritage lined streets, this magnificent Victorian c.1895 combines its stunning originality with extended modern function on an impressive 336sqm with deep northern rear garden. Set behind its original courtyard entry and exquisite iron lacework façade, illustrious original dimensions showcase soaring rosette ceilings, tall arched windows and early OFPs in a floorplan that flows from two generous bedrooms to a spacious central living room and adjoining study.
At the rear, a fully equipped modern kitchen overlooks bright open plan living and dining with handsome OFP before extensively paved alfresco areas and the landscaped rear garden. Other highlights include large modern bathroom, powder room, hidden laundry, hydronic heating, rich original details including timber floors, a wide arched hallway and etched glass entry. Immediately enjoy in complete comfort or explore update, further renovation/extension or second story addition possibilities (STCA) that take advantage of the northern rear and deep second frontage to Neptune Lane.
From this prime position, walk to every St Kilda attraction including both Fitzroy and Acland Streets, trams and light rail links with the beach, foreshore promenade, awarded restaurants, Luna Park, the Palais and Esplanade markets waiting at the end of the street.