Enter via Meredith Street
In Elwood’s most sought after surroundings, the clever design of this first floor apartment and its tightly held building deliver a low maintenance lifestyle environment of absolute peace, privacy and tranquility just a short stroll from the beach, buses, St Kilda Botanic Gardens and local favourite, Jerry’s Milk Bar....
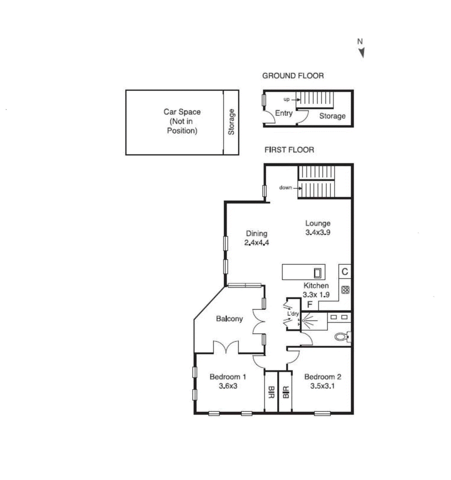
Enter via Meredith Street
In Elwood’s most sought after surroundings, the clever design of this first floor apartment and its tightly held building deliver a low maintenance lifestyle environment of absolute peace, privacy and tranquility just a short stroll from the beach, buses, St Kilda Botanic Gardens and local favourite, Jerry’s Milk Bar.
Positioned at the rear overlooking the building’s magnificent central gardens, generous proportions are ideally arranged around a deep terrace whose central position and floor to ceiling glazing draw abundant natural light and leafy views throughout. A private ground floor entry hall rises up to spacious open living and dining areas that include a stylishly renovated stone kitchen before glass doors draw back to the entertaining terrace and the resort style communal gardens and entertaining area below. At the rear, two spacious bedrooms, both with BIRs, are served by a chic modern bathroom with double vanity and separate Euro laundry. Includes study nook, ducted heating/ cooling, polished timber floors, secure entry, basement parking and storage. Minutes to Elwood Village, awarded foreshore restaurants and Acland Street.