Executor's Auction
Step out of the past into the future with a blue-chip Brighton East address. Surrounded by the luxury homes of today and the prestige development of tomorrow, this approx 7,000sqft/650sqm property is ready for your vision of the future. See the quality of the neighbours, look to a sun-catching north-westerly orientation and...
Executor's Auction
Step out of the past into the future with a blue-chip Brighton East address. Surrounded by the luxury homes of today and the prestige development of tomorrow, this approx 7,000sqft/650sqm property is ready for your vision of the future. See the quality of the neighbours, look to a sun-catching north-westerly orientation and start planning your dream home on this deep site.
An easy walk to the Brighton Secondary College and South Rd private schools, with the bus to stations at the end of the street, and Church St, stations and the bay within a minute, this leafy location has the perfect fit for your family's future.
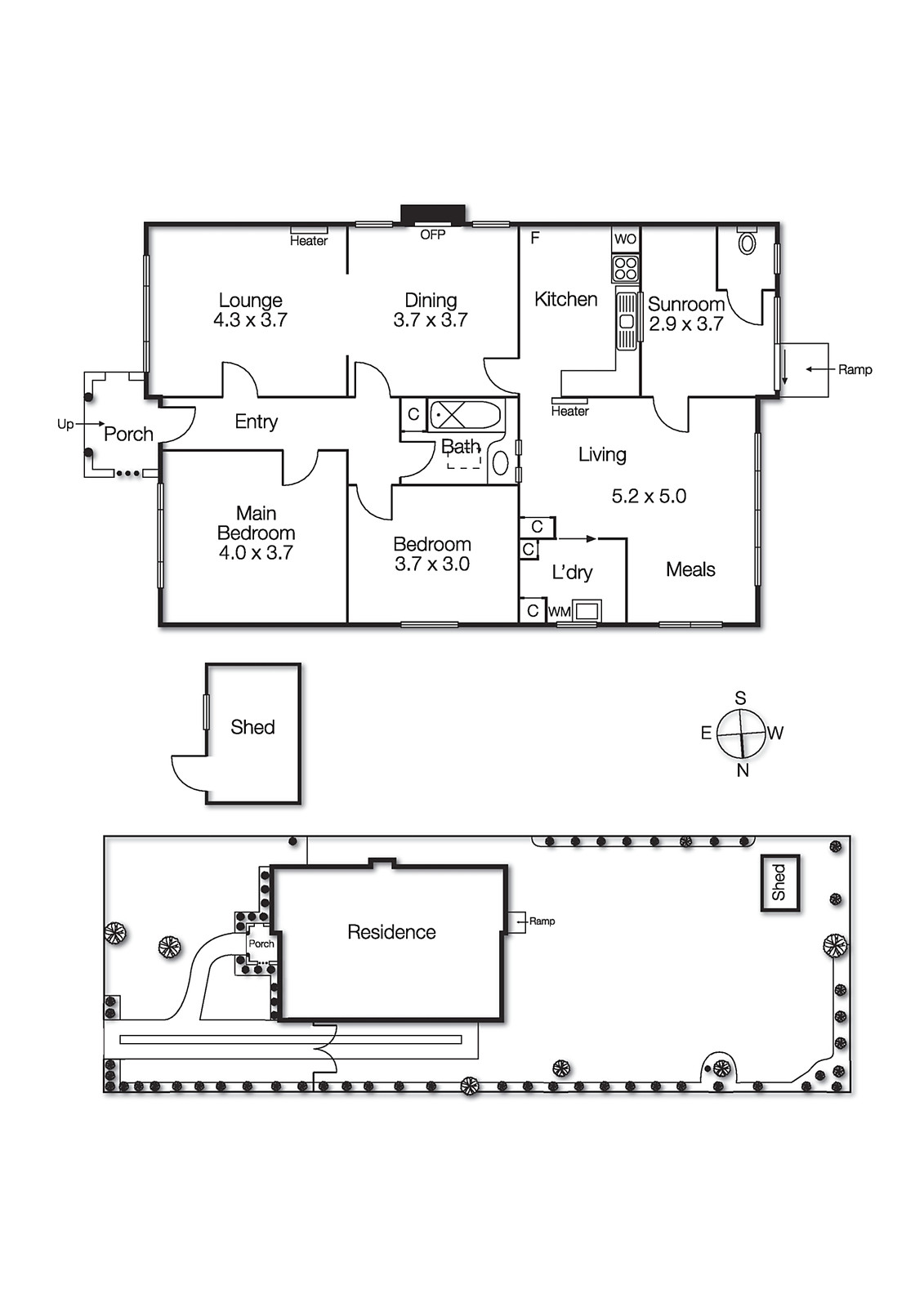
Maybe even honour the past with a clever renovation for the artful Art Deco home already here. Beautifully detailed with a barley-twist entry, leadlight and decorative ceilings, this solid two bedroom, dual living home will, at the very least, provide you with plenty of yesterday's charm to enjoy or rent while you plan! For more information about this well-located site contact Bert Stewart at Buxton Brighton on 0418 350 199
Listing Website