A much-loved home in a highly-desired neighbourhood where big blocks of land and leafy tree-lined streets add to the family appeal, this sun-filled setting is sure to attract the attention of many.
Situated on 689sqm approx. with a preferred west-facing rear, the home is presented in immaculately maintained condition and is ready to be enjoyed...
A much-loved home in a highly-desired neighbourhood where big blocks of land and leafy tree-lined streets add to the family appeal, this sun-filled setting is sure to attract the attention of many.
Situated on 689sqm approx. with a preferred west-facing rear, the home is presented in immaculately maintained condition and is ready to be enjoyed now while offering plenty of scope to update or even extend (STCA) as time goes by.
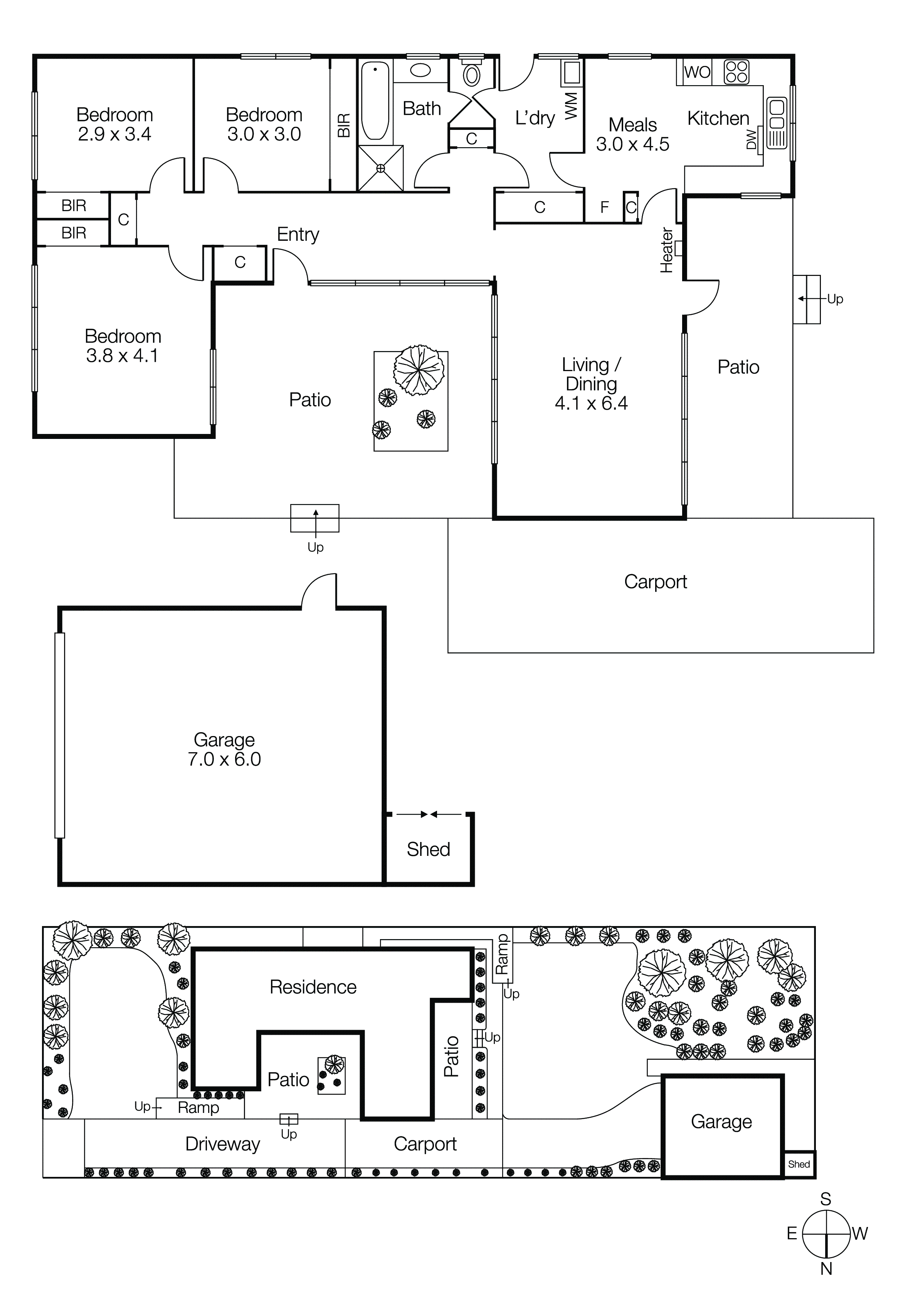
Across a northerly crazy-paved patio, the accommodation opens to reveal newly polished hardwood floors in the light-lavished entrance hall that leads through to a spacious formal lounge/dining room. Out from here is an elevated terrace overlooking the leafy rear garden, while also enjoying green outlooks is the vibrant retro kitchen with sleek new oven and stainless steel dishwasher and meals area.
Each of the three bedrooms feature new carpets and fitted wardrobes and share the central bathroom with two-way WC, while a laundry with yard access, ducted heating and evaporative cooling plus a carport and double garage are also offered.
A perfect chance to secure a substantial slice of a premium postcode then make changes to suit over time, the home is located within steps of schooling & parklands, moments to bus stops & cafes and within easy reach of shopping options and the bay.
For more information about this much-loved family home, contact Kylie Charlton or Mathew Ryley at Buxton Sandringham.