Nestled within the exclusive ‘Heritage Park’ estate, this meticulously maintained residence provides a superb low-maintenance lifestyle in a peaceful parkside position.
Underscored by timber floors, the inviting living room captures beautiful northern light and complements an immaculate kitchen/meals area, private entertaining terrace and...
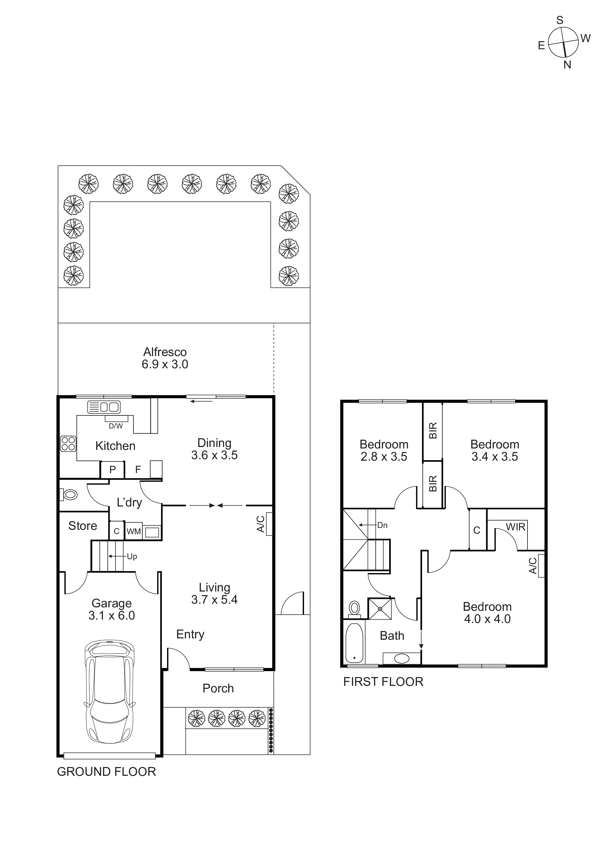
Nestled within the exclusive ‘Heritage Park’ estate, this meticulously maintained residence provides a superb low-maintenance lifestyle in a peaceful parkside position.
Underscored by timber floors, the inviting living room captures beautiful northern light and complements an immaculate kitchen/meals area, private entertaining terrace and good-sized rear garden.
The upper-level is dedicated to 3 robed bedrooms including a north-facing main bedroom with WIR and stylishly renovated 2-way bathroom with marble-look tiles and freestanding bath.
Comfort is further enhanced by ceiling fans, heating/AC, storage, guest WC and internally accessed single garage.
Experience a parkland lifestyle just footsteps to shops, buses, Argyle Reserve and Hughesdale Primary School, and minutes to Hughesdale station and Chadstone Shopping Centre.
ALL ENQUIRIES MUST INCLUDE A CONTACT NUMBER. For more information, contact Chris Hassall at Buxton Bentleigh on 0412 898 990 or the Buxton Office on 9563 9933. ‘We have obtained all information in this document from sources we believe to be reliable; however, we cannot guarantee its accuracy. Prospective purchasers are advised to carry out their own investigation.’