Simply brilliant for lifestyle loving families in the Gardenvale Primary School zone, this cleverly designed three bedroom two bathroom home offers superb space on a low maintenance parcel with easy convenience to Church Street, transport and Brighton’s private schools. Set securely behind a high private fence, two generous living areas provide...
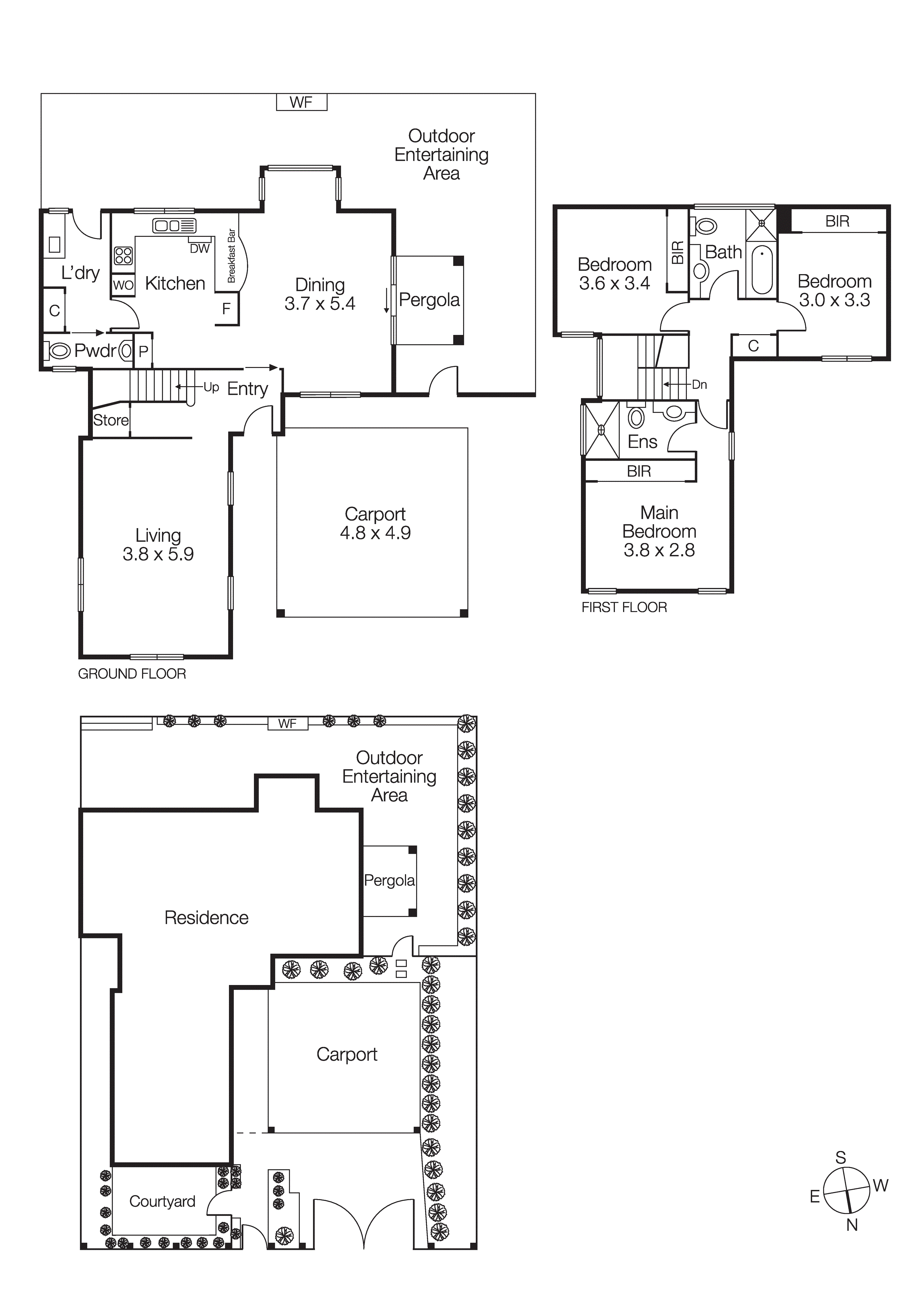
Simply brilliant for lifestyle loving families in the Gardenvale Primary School zone, this cleverly designed three bedroom two bathroom home offers superb space on a low maintenance parcel with easy convenience to Church Street, transport and Brighton’s private schools. Set securely behind a high private fence, two generous living areas provide ideal family flexibility, soaking up the sun through extensive glazing that unfolds to indoor/outdoor entertaining areas and the surrounding courtyard gardens.
Upstairs, three bedrooms are kept beautifully bright by a northern aspect, two with BIRs sharing a family bathroom, the main featuring its own ensuite. Impeccably presented throughout, this smart family home includes a large light filled lounge, fully equipped modern kitchen with breakfast bar overlooking adjoining open living/dining flowing to pergola entertaining, downstairs powder room and laundry, excellent kitchen and bathroom storage, ducted heating/cooling, secure double carport.
From this sought after location in the Brighton Secondary College zone, walk to renowned Landcox Park, Gardenvale Primary, Hawthorn Road trams and North Road buses with minutes to Church Street shopping and dining, Firbank and Brighton Grammars, North Brighton Station and major arterial links.