*You MUST register for an inspection and we ask that you also confirm your attendance. AN AGENT WILL NOT BE PRESENT IF YOU DO NOT REGISTER and CONFIRM. Your consideration and co-operation is appreciated.
** PHOTO ID is required for the inspection. Thank you.
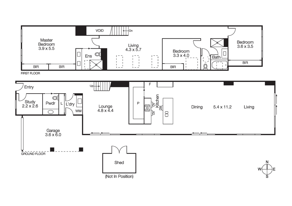
This stunning 3 bedroom plus study townhouse is not to be missed! Light filled,...
*You MUST register for an inspection and we ask that you also confirm your attendance. AN AGENT WILL NOT BE PRESENT IF YOU DO NOT REGISTER and CONFIRM. Your consideration and co-operation is appreciated.
** PHOTO ID is required for the inspection. Thank you.
This stunning 3 bedroom plus study townhouse is not to be missed! Light filled, modern, spacious and perfect for family entertaining!
The ground floor comprises of two separate living areas with timber flooring, open plan entertaining with a generously proportioned kitchen including Miele stainless steel appliances, 5 burner gas cooking, double oven, stone island bench and ample storage. Also includes a separate study, powder room and laundry.
The first floor includes a generous master bedroom with carpet flooring, large BIRs and private ensuite- including a double vanity and skylight, a third light filled living area with two additional bedrooms both carpeted and BIRs. Shared modern bathroom with bath and shower and a separate toilet.
Also features ducted heating and cooling throughout, single lock up car park, plus a shed in the rear garden for additional storage.
Enjoy entertaining with the grassed outdoor area, walking distance to parks or a short drive to Dendy Park, the local shopping precinct is filled with restaurants, shops and all your local necessities and to top it off Hampton Beach is only a 5 minute drive.